Приказ Инспекции Тульской области по государственной охране объектов культурного наследия от 04.12.2025 № 130
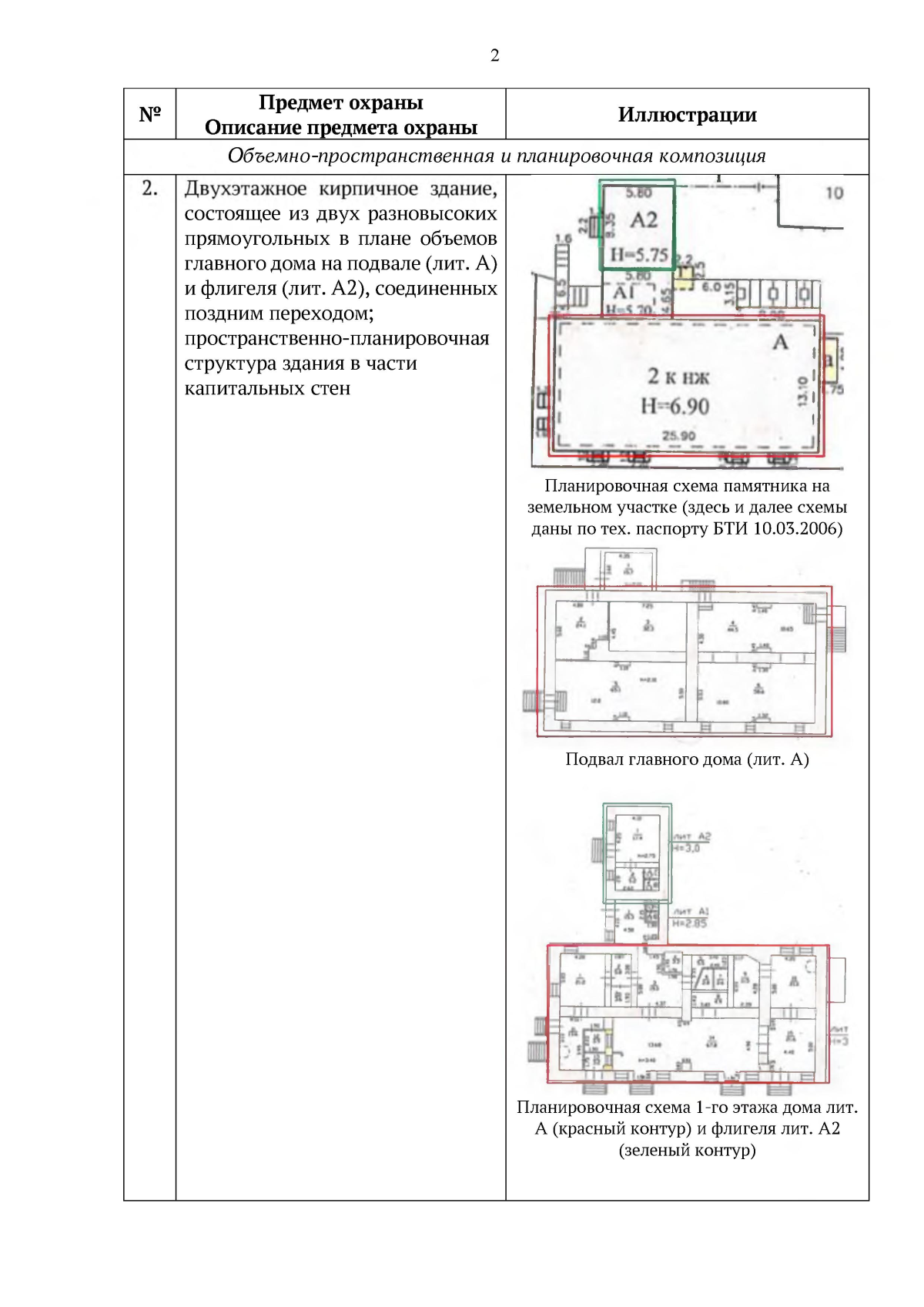
"Об утверждении предмета охраны объекта культурного наследия федерального значения "Дом, в котором в 1827 г. родился и жил до 1912 г. изобретатель хроматической гармонии Белобородов Николай Иванович", 1827-1912 гг., расположенного по адресу: Тульская область, г. Тула, пр. Ленина, д. 16, лит. А, А1, А2"
(Зарегистрирован 04.12.2025 № 130)
"Об утверждении предмета охраны объекта культурного наследия федерального значения "Дом, в котором в 1827 г. родился и жил до 1912 г. изобретатель хроматической гармонии Белобородов Николай Иванович", 1827-1912 гг., расположенного по адресу: Тульская область, г. Тула, пр. Ленина, д. 16, лит. А, А1, А2"
(Зарегистрирован 04.12.2025 № 130)
Номер опубликования: 7101202512050002
Дата опубликования:
05.12.2025
