Официальное опубликование правовых актов
ОФИЦИАЛЬНОЕ ОПУБЛИКОВАНИЕ
Приказ Комитета по охране объектов культурного наследия Томской области от 07.11.2024 № 0071/01-07
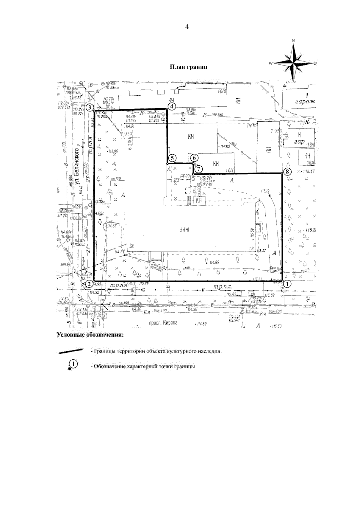
"О включении объекта культурного наследия регионального значения "Корпус медицинского института. В этом здании в годы Великой Отечественной войны размещался эвакогоспиталь № 1229", 1937 г., в единый государственный реестр объектов культурного наследия (памятников истории и культуры) народов Российской Федерации, утверждении границ его территории и предмета охраны"
(Зарегистрирован 11.11.2024 № 1409-48/2024)
Номер опубликования: 7001202411130001
Дата опубликования: 13.11.2024
Страница №4 из 24:
Увеличить