Официальное опубликование правовых актов
ОФИЦИАЛЬНОЕ ОПУБЛИКОВАНИЕ
Приказ Управления государственной охраны объектов культурного наследия Свердловской области от 29.01.2026 № 49
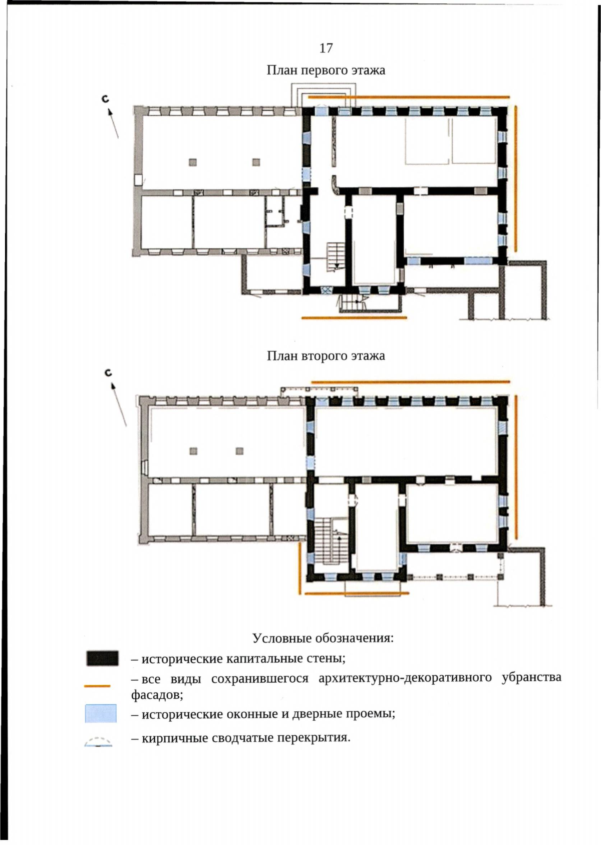
"Об утверждении предметов охраны объекта культурного наследия регионального значения "Усадьба управляющего заводом", расположенного по адресу: Свердловская область, г. Каменск-Уральский, ул. Ленина, д. 117, ул. Пионерская, д. 8, строение 1, и входящих в его состав объектов культурного наследия регионального значения "Дом жилой", расположенного по адресу: Свердловская область, г. Каменск-Уральский, ул. Ленина, д. 117, и "Изба кучерская", расположенного по адресу: Свердловская область, г. Каменск-Уральский, ул. Пионерская, д. 8, строение 1, включенных в единый государственный реестр объектов культурного наследия (памятников истории и культуры) народов Российской Федерации"
(Зарегистрирован 02.02.2026 № 4237)
Номер опубликования: 6601202602040052
Дата опубликования: 04.02.2026
Страница №17 из 25:
Увеличить