Официальное опубликование правовых актов
ОФИЦИАЛЬНОЕ ОПУБЛИКОВАНИЕ
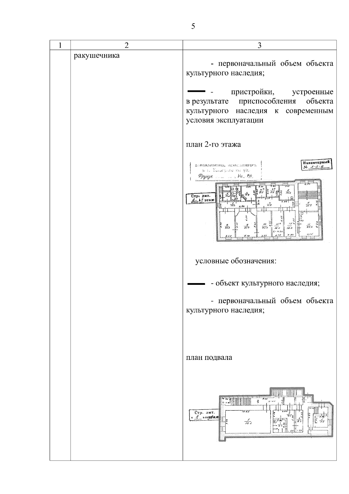
Постановление Комитета по охране объектов культурного наследия Ростовской области от 24.11.2023 № 1941
"Об утверждении предмета охраны объекта культурного наследия регионального значения (памятника) "Мемориальное здание, в котором работал Таганрогский ГК РКП(б)", расположенного по адресу: Ростовская область, г. Таганрог, ул. Фрунзе, д. 70"
(Зарегистрирован 24.11.2023 № 1941)
Номер опубликования: 6101202311270018
Дата опубликования: 27.11.2023
Страница №5 из 26:
Увеличить