Официальное опубликование правовых актов
ОФИЦИАЛЬНОЕ ОПУБЛИКОВАНИЕ
Приказ Управления по государственной охране объектов культурного наследия Орловской области от 15.02.2022 № 8
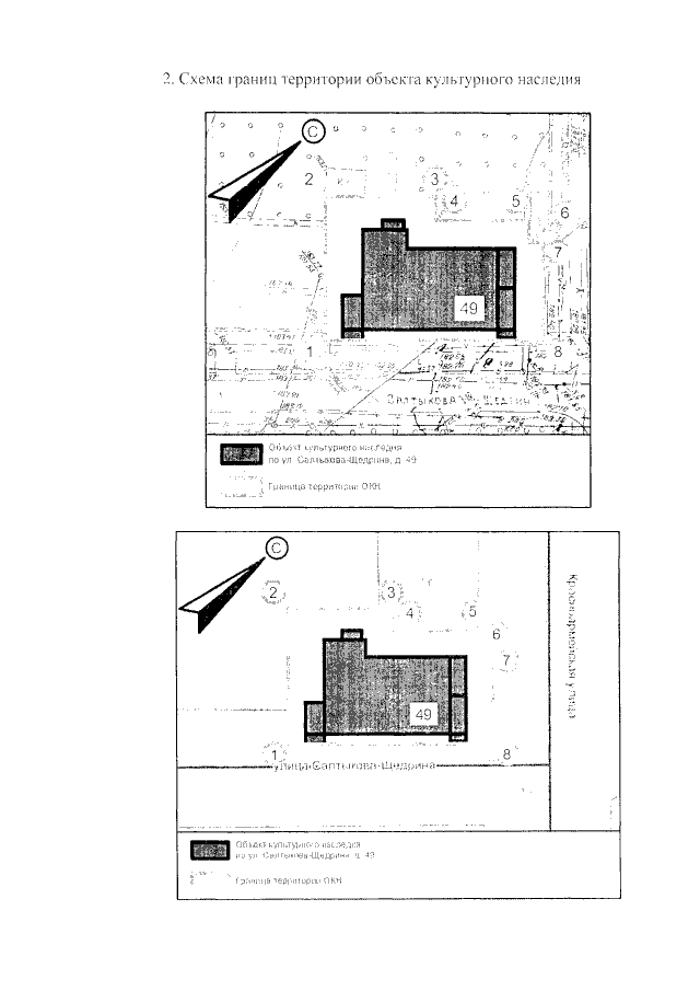
"Об утверждении границ территории и правового режима использования территории объекта культурного наследия регионального значения "Дом жилой", XIX в., расположенного по адресу: Орловская область, г. Орёл, ул. Салтыкова-Щедрина, д. 49"
(Зарегистрирован 21.02.2022 № 54/2022)
Номер опубликования: 5701202202280003
Дата опубликования: 28.02.2022
Страница №6 из 8:
Увеличить