Официальное опубликование правовых актов
ОФИЦИАЛЬНОЕ ОПУБЛИКОВАНИЕ
Распоряжение Министерства архитектуры и пространственно-градостроительного развития Оренбургской области от 25.09.2025 № 18-р
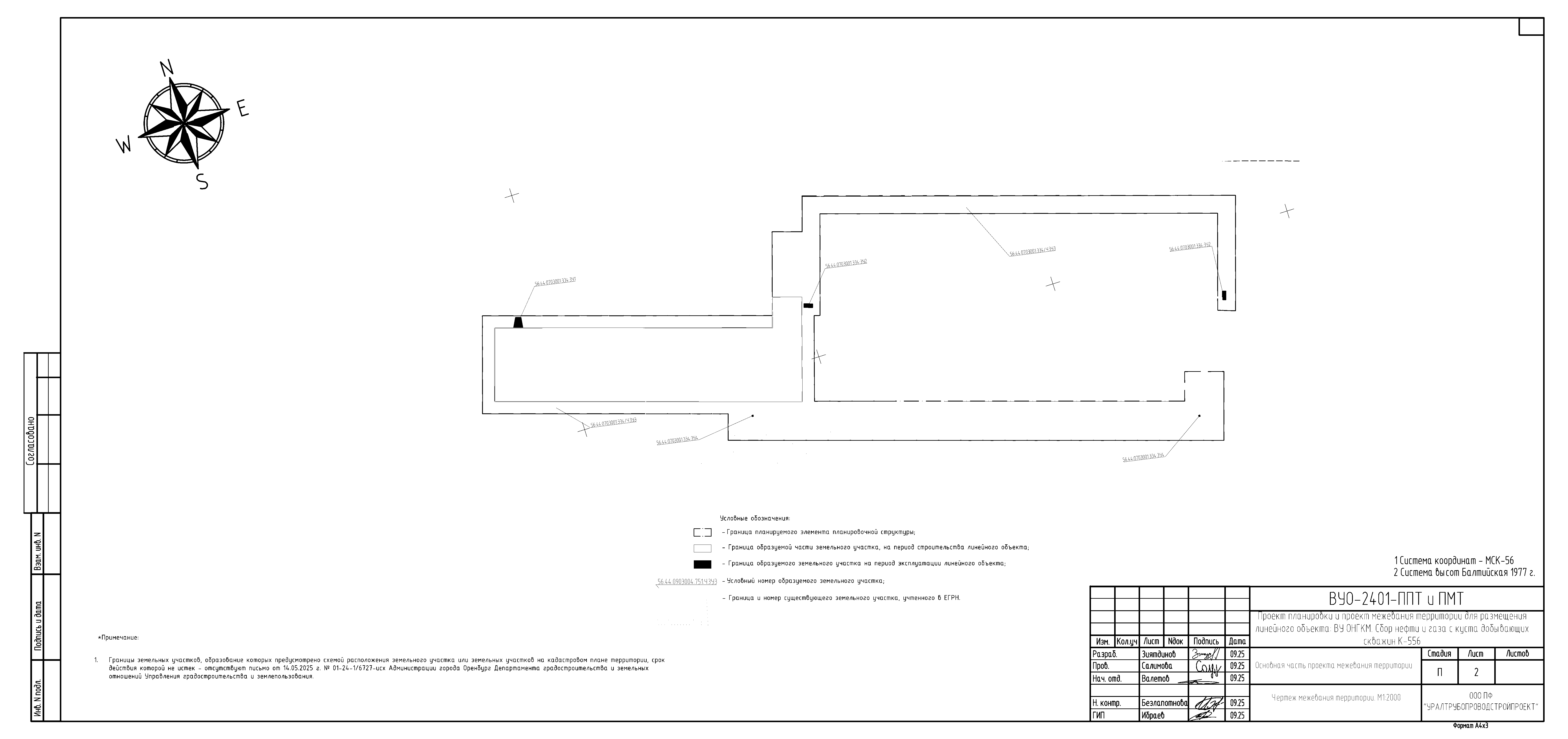
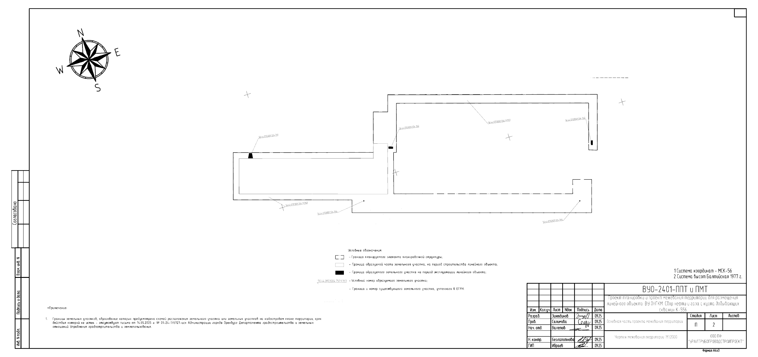
"Об утверждении документации по планировке территории для размещения линейного объекта: "ВУ ОНГКМ. Сбор нефти и газа с куста добывающих скважин К-556"
(Зарегистрирован 26.09.2025 № 0060/2025/02)
Номер опубликования: 5601202510010008
Дата опубликования: 01.10.2025
Страница №23 из 30: