Официальное опубликование правовых актов
ОФИЦИАЛЬНОЕ ОПУБЛИКОВАНИЕ
Постановление Правительства Нижегородской области от 09.06.2022 № 435
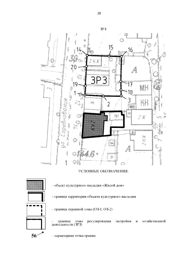
"Об установлении зон охраны объекта культурного наследия регионального значения "Похвалинский съезд" (спуск от Маслякова ул. до Канавинского моста), "Дом М.Е. Башкирова" (пер. Казбекский, 4), "Жилой дом" (ул. Соревнования, 14), "Жилой дом" (ул. Ярославская, 13), расположенных в г. Нижнем Новгороде, и утверждении требований к градостроительным регламентам в границах территорий данных зон"
Номер опубликования: 5200202206160006
Дата опубликования: 16.06.2022
Страница №30 из 63:
Увеличить