Официальное опубликование правовых актов
ОФИЦИАЛЬНОЕ ОПУБЛИКОВАНИЕ
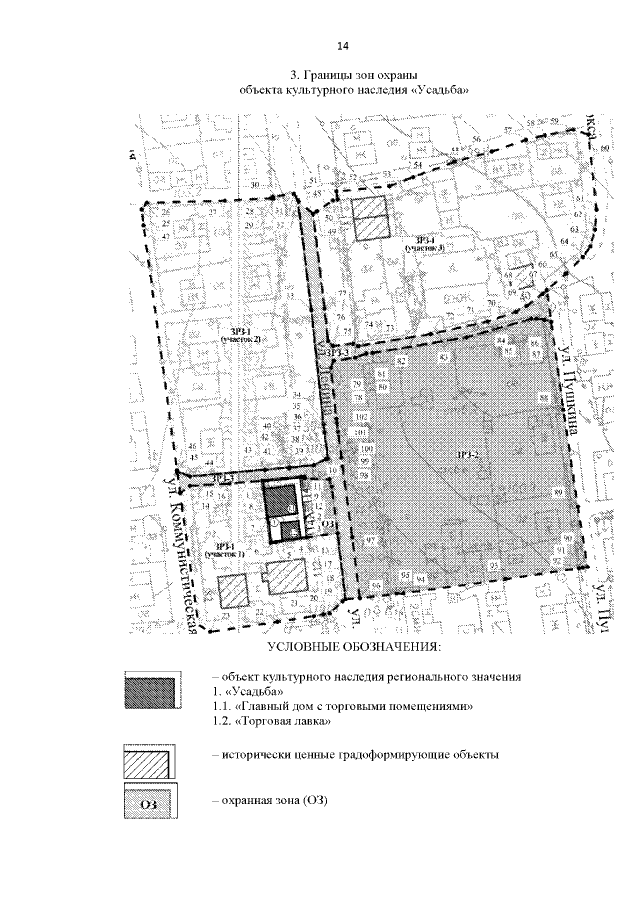
Постановление Правительства Нижегородской области от 10.06.2022 № 438
"Об установлении зон охраны объектов культурного наследия регионального значения, расположенных в р.п. Воскресенское, и утверждении требований к градостроительным регламентам в границах территорий данных зон"
Номер опубликования: 5200202206160004
Дата опубликования: 16.06.2022
Страница №16 из 90:
Увеличить