Приказ министерства строительства и архитектуры Липецкой области от 13.08.2025 № 353
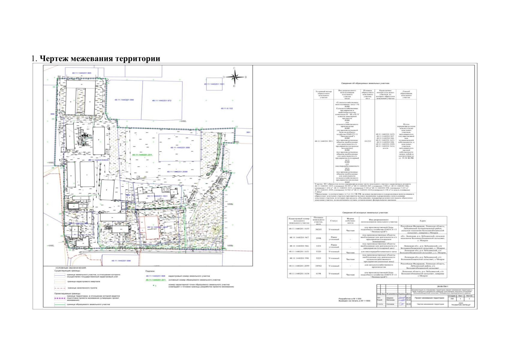
"Об утверждении документации по планировке территории (проект межевания территории в виде отдельного документа) севернее села Мокрое сельского поселения Большеизбищенский сельсовет Лебедянского муниципального района"
"Об утверждении документации по планировке территории (проект межевания территории в виде отдельного документа) севернее села Мокрое сельского поселения Большеизбищенский сельсовет Лебедянского муниципального района"
Номер опубликования: 4801202508180017
Дата опубликования:
18.08.2025
