Официальное опубликование правовых актов
ОФИЦИАЛЬНОЕ ОПУБЛИКОВАНИЕ
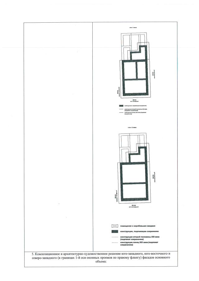
Приказ Инспекции по охране объектов культурного наследия Костромской области от 09.12.2021 № 180
"Об утверждении предмета охраны объекта культурного наследия регионального значения "Дом жилой", 80-е гг. XIX в. (Костромская область, Красносельский район, пос. Красное-на-Волге, пл. Красная, 9)"
Номер опубликования: 4401202112140004
Дата опубликования: 14.12.2021
Страница №6 из 8:
Увеличить