Официальное опубликование правовых актов
ОФИЦИАЛЬНОЕ ОПУБЛИКОВАНИЕ
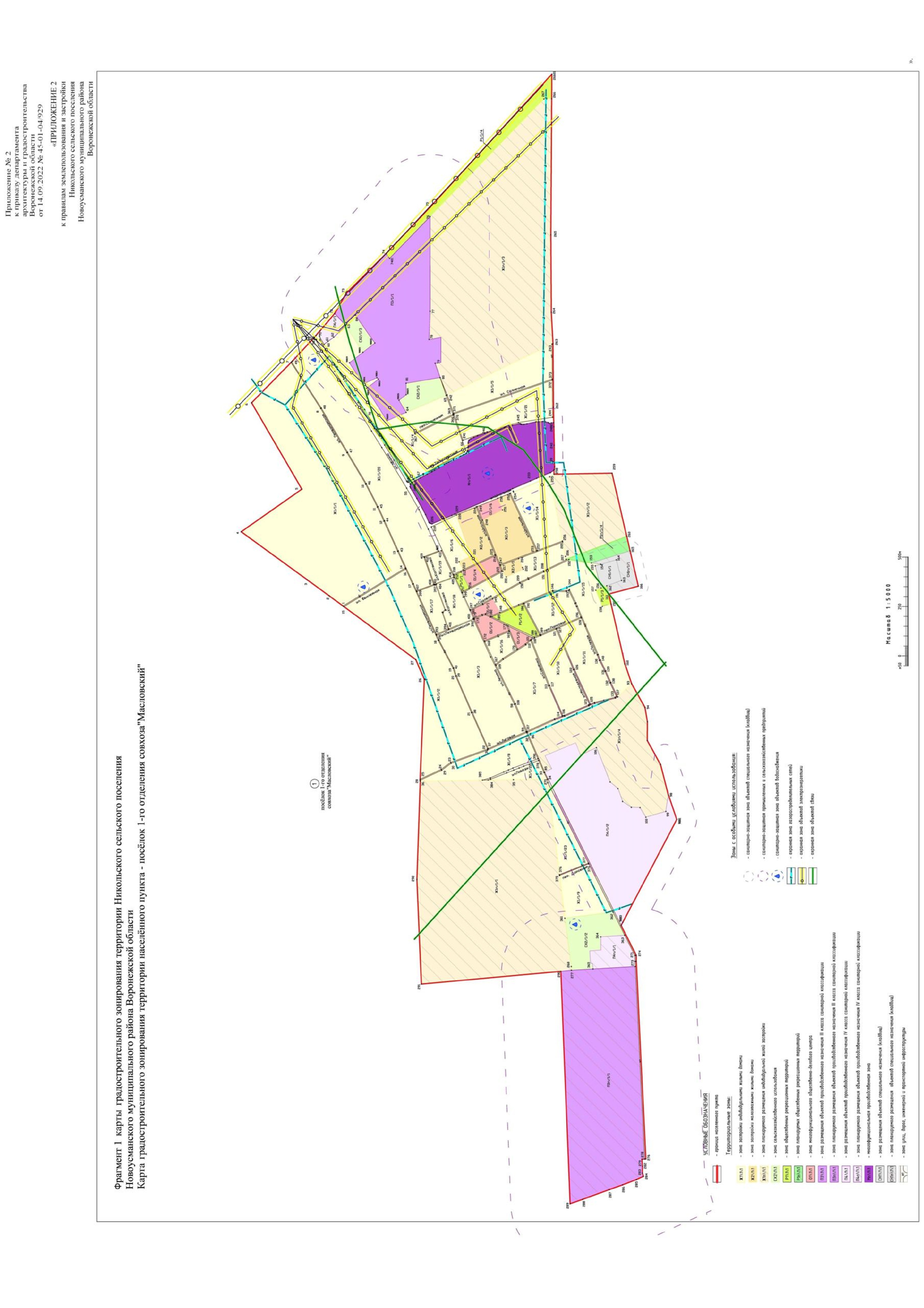
Приказ Департамента архитектуры и градостроительства Воронежской области от 14.09.2022 № 45-01-04/929
"О внесении изменений в правила землепользования и застройки Никольского сельского поселения Новоусманского муниципального района Воронежской области"
(Зарегистрирован 26.09.2022 № 975)
Номер опубликования: 3601202209280004
Дата опубликования: 28.09.2022
Страница №5 из 5: