Официальное опубликование правовых актов
ОФИЦИАЛЬНОЕ ОПУБЛИКОВАНИЕ
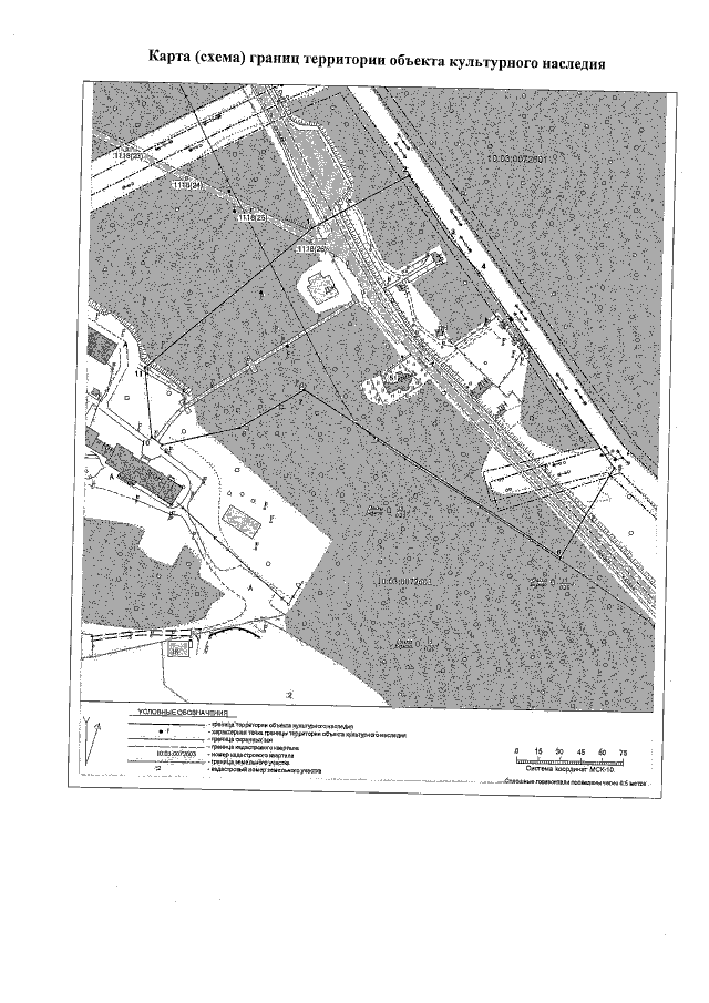
Приказ Управления по охране объектов культурного наследия Республики Карелия от 13.11.2020 № 631
"Об утверждении границ территории объекта культурного наследия федерального значения "Первый русский курорт "Марциальные воды", открытый в 1719 г. по указанию Петра I", расположенного по адресу: Республика Карелия, Кондопожский район, санаторий "Марциальные воды"
Номер опубликования: 1001202011160015
Дата опубликования: 16.11.2020
Страница №6 из 6:
Увеличить