Официальное опубликование правовых актов
ОФИЦИАЛЬНОЕ ОПУБЛИКОВАНИЕ
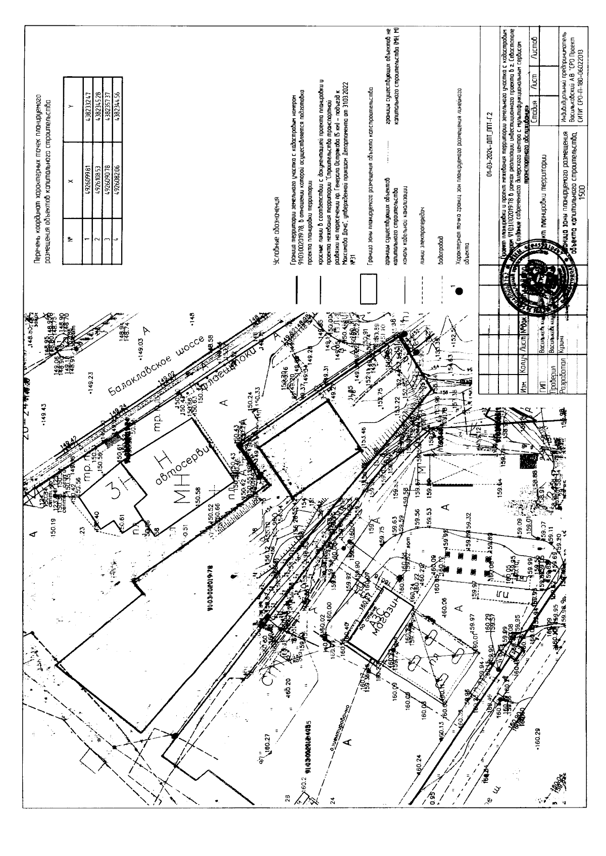
Постановление Правительства Севастополя от 01.12.2025 № 551-ПП
"Об утверждении документации по планировке территории "Проект планировки и проект межевания территории земельного участка с кадастровым номером 91:03:002019:78 в рамках реализации инвестиционного проекта в г. Севастополе "Создание современного дилерского центра с мультифункциональным сервисом транспортного обслуживания"
Номер опубликования: 9200202512080015
Дата опубликования: 08.12.2025
Страница №31 из 43:
Увеличить