Официальное опубликование правовых актов
ОФИЦИАЛЬНОЕ ОПУБЛИКОВАНИЕ
Постановление Правительства Севастополя от 06.12.2018 № 832-ПП
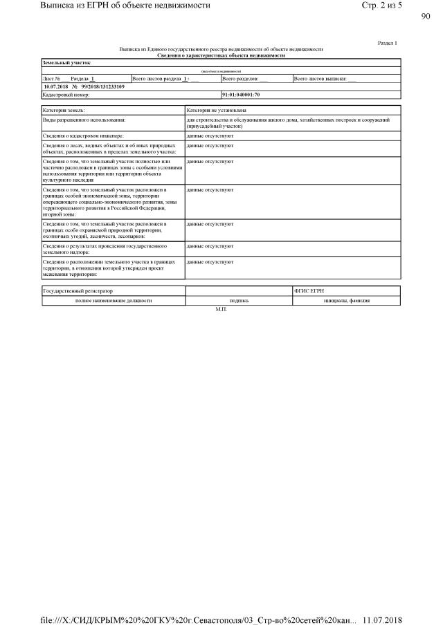
"Об утверждении градостроительной документации по проекту планировки и проекту межевания территории линейного объекта "Строительство канализации в с. Новобобровка, КНС и 2-х НК до КНС в с. Россошанка" в Орлиновском внутригородском муниципальном округе"
Номер опубликования: 9200201812130029
Дата опубликования: 13.12.2018
Страница №163 из 210:
Увеличить