Официальное опубликование правовых актов
ОФИЦИАЛЬНОЕ ОПУБЛИКОВАНИЕ
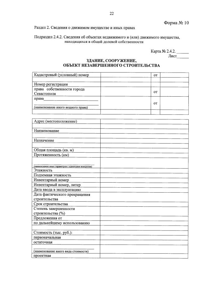
Постановление Правительства Севастополя от 19.07.2018 № 469-ПП
"Об учете имущества, находящегося в государственной собственности города Севастополя, и ведении Реестра собственности города Севастополя"
Номер опубликования: 9200201807230003
Дата опубликования: 23.07.2018
Страница №36 из 109:
Увеличить