Официальное опубликование правовых актов
ОФИЦИАЛЬНОЕ ОПУБЛИКОВАНИЕ
Приказ Министерства культуры Республики Крым от 19.02.2026 № 202-ОКН
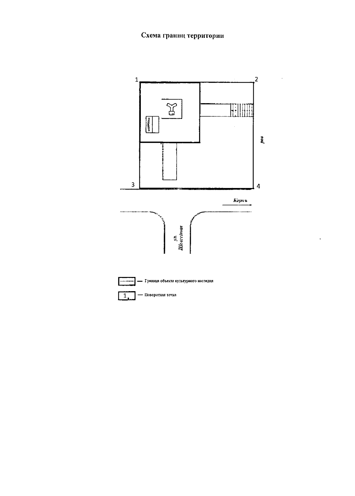
"О внесении изменений в приказ Министерства культуры Республики Крым от 22.02.2022 № 37-ОКН "Об утверждении границ территории, режимов использования земель в границах территории объекта культурного наследия регионального значения "Багеровский ров - братская могила мирных жителей - жертв фашистского террора, 1941 год", расположенного по адресу: Республика Крым, Ленинский район, сельское поселение Октябрьское, с. Октябрьское"
(Зарегистрирован 20.02.2026 № 3309)
Номер опубликования: 9101202602250002
Дата опубликования: 25.02.2026
Страница №4 из 4:
Увеличить