Официальное опубликование правовых актов
ОФИЦИАЛЬНОЕ ОПУБЛИКОВАНИЕ
Приказ Службы по экологическому и технологическому надзору Республики Крым от 20.11.2025 № 17-нпа
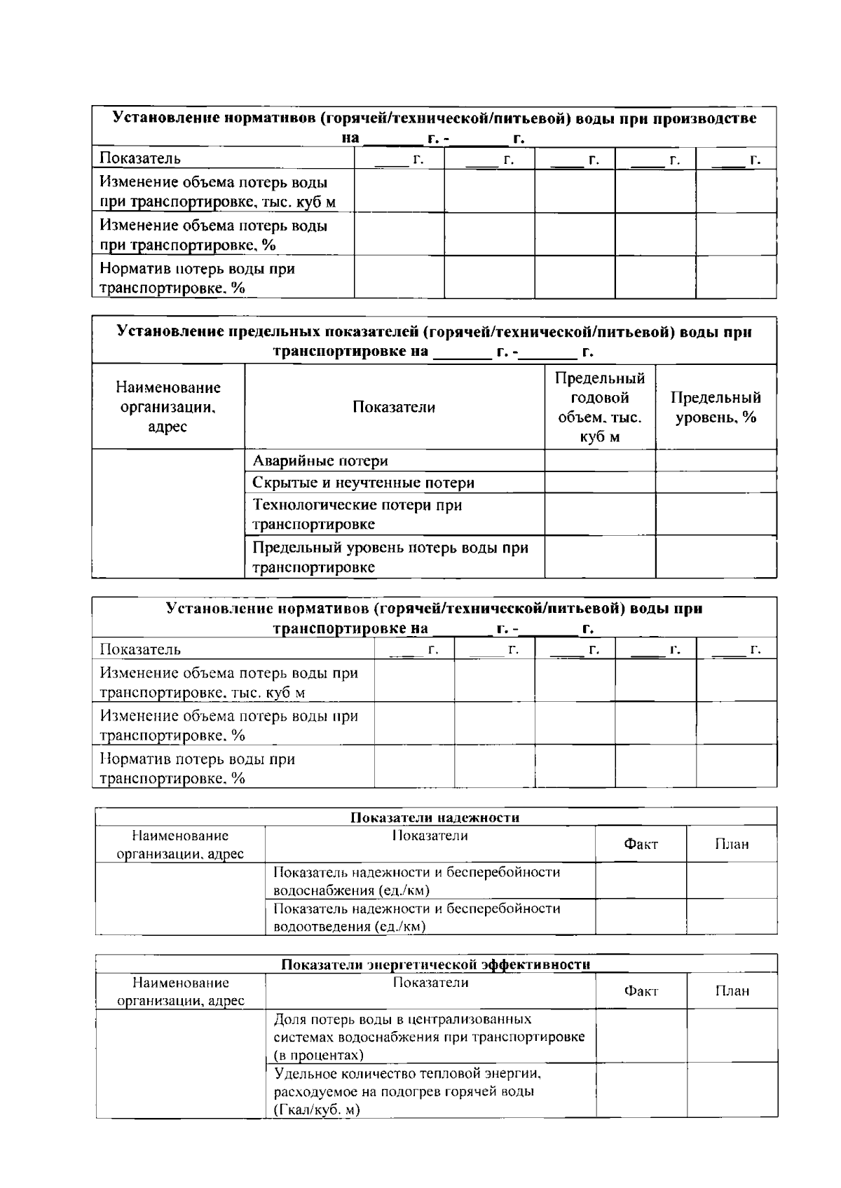
"О внесении изменений в приказ Службы по экологическому и технологическому надзору Республики Крым от 01 августа 2025 года № 10-нпа "Об утверждении Административного регламента предоставления Службой по экологическому и технологическому надзору Республики Крым государственной услуги по выдаче Акта об установлении нормативов потерь горячей, питьевой, технической воды в централизованных системах водоснабжения при ее производстве и транспортировке, определению плановых значений, фактических значений показателей надежности, энергетической эффективности объектов централизованных систем горячего водоснабжения, холодного водоснабжения и (или) водоотведения"
(Зарегистрирован 27.11.2025 № 2995)
Номер опубликования: 9101202512010003
Дата опубликования: 01.12.2025
Страница №33 из 36:
Увеличить