Официальное опубликование правовых актов
ОФИЦИАЛЬНОЕ ОПУБЛИКОВАНИЕ
Приказ Министерства культуры Республики Крым от 01.10.2025 № 612-ОКН
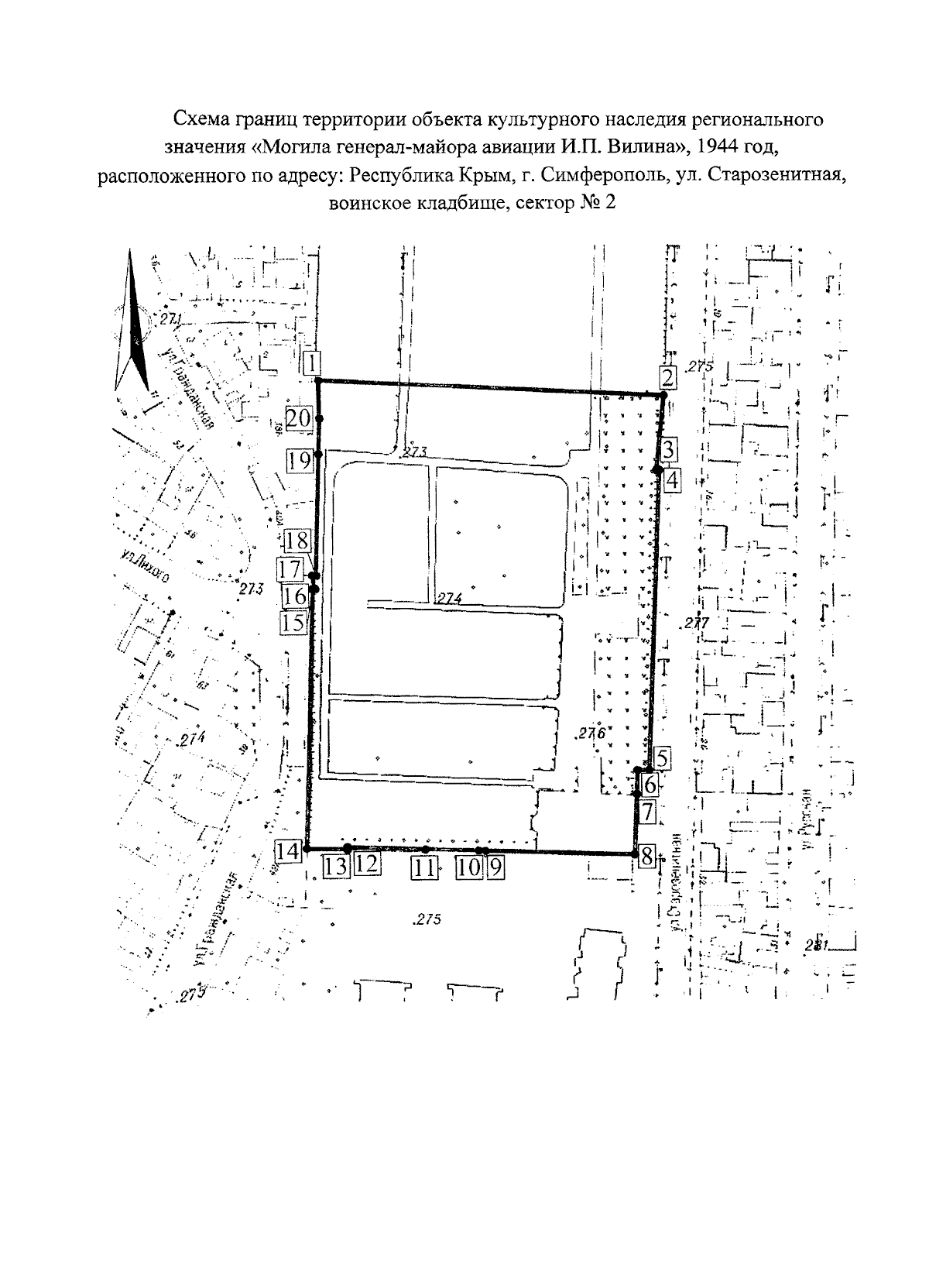
"О включении выявленного объекта культурного наследия "Могила генерал-майора авиации И.П. Вилина (умер 19 апреля 1944 года, перезахоронен на Воинском кладбище в 1970-х)", расположенного по адресу: Республика Крым, г. Симферополь, ул. Старозенитная, воинское кладбище, сектор № 2, в единый государственный реестр объектов культурного наследия (памятников истории и культуры) народов Российской Федерации в качестве объекта культурного наследия регионального значения и утверждении границ территории, режимов использования земель в границах территории объекта культурного наследия регионального значения"
(Зарегистрирован 07.10.2025 № 2808)
Номер опубликования: 9101202510080003
Дата опубликования: 08.10.2025
Страница №6 из 8:
Увеличить