Официальное опубликование правовых актов
ОФИЦИАЛЬНОЕ ОПУБЛИКОВАНИЕ
Приказ Министерства культуры Республики Крым от 04.07.2025 № 378-ОКН
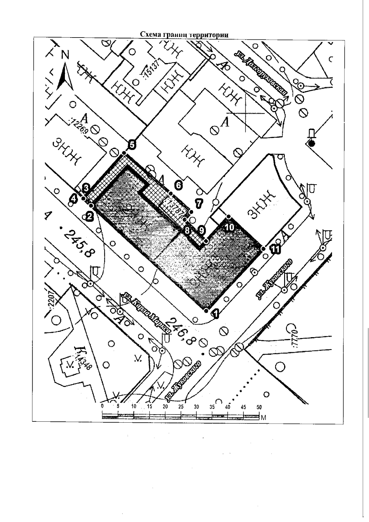
"Об утверждении границ территории, режимов использования земель в границах территории объекта культурного наследия регионального значения "Естественно-исторический музей Таврического губернского земства", 1899 год, расположенного по адресу: Республика Крым, г. Симферополь, ул. Карла Маркса, 17/ ул. Долгоруковская, 2/ ул. Жуковского, 3, литеры "А", "Б"
(Зарегистрирован 08.07.2025 № 2546)
Номер опубликования: 9101202507100003
Дата опубликования: 10.07.2025
Страница №4 из 7:
Увеличить