Приказ Министерства культуры Республики Крым от 17.01.2025 № 17-ОКН
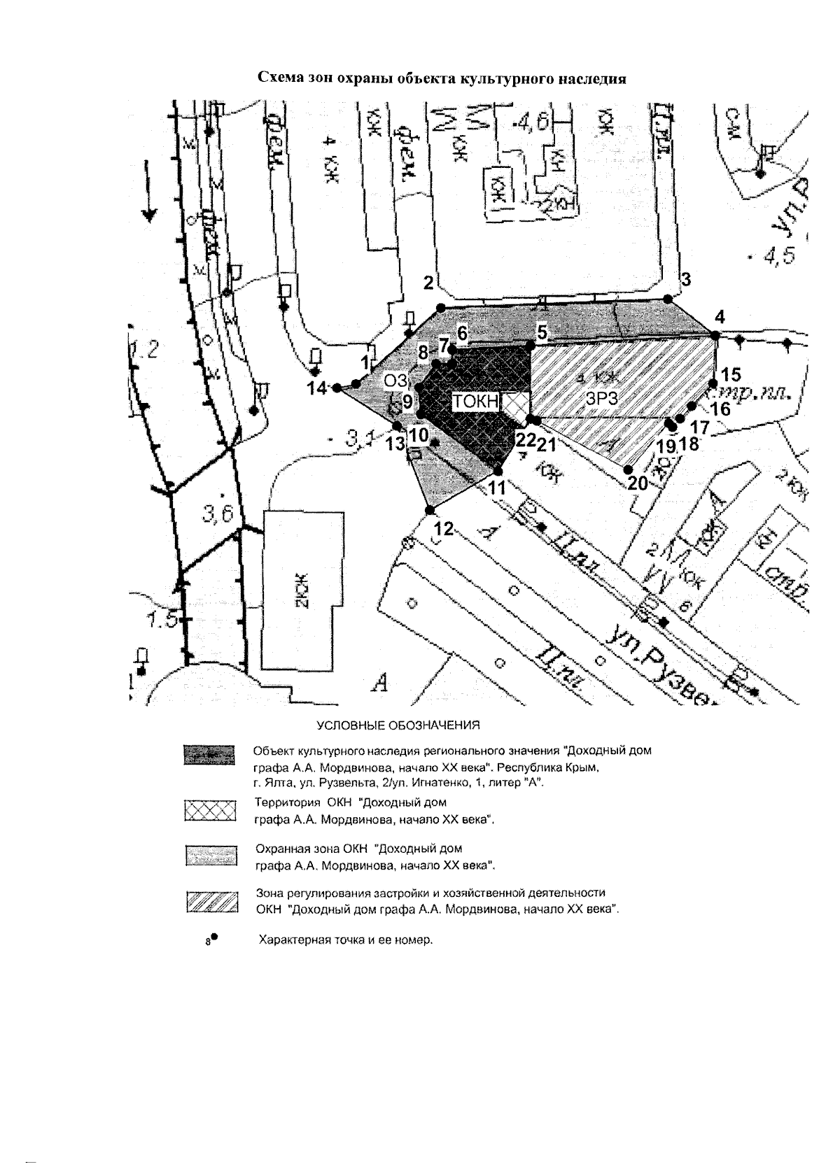
"Об утверждении границ зон охраны, режимов использования земель и требований к градостроительным регламентам в границах зон охраны объекта культурного наследия регионального значения "Доходный дом графа А.А. Мордвинова", начало XX века, расположенного по адресу: Республика Крым, г. Ялта, ул. Рузвельта, 2/ул. Игнатенко, 1, литер "А"
(Зарегистрирован 20.01.2025 № 2128)
"Об утверждении границ зон охраны, режимов использования земель и требований к градостроительным регламентам в границах зон охраны объекта культурного наследия регионального значения "Доходный дом графа А.А. Мордвинова", начало XX века, расположенного по адресу: Республика Крым, г. Ялта, ул. Рузвельта, 2/ул. Игнатенко, 1, литер "А"
(Зарегистрирован 20.01.2025 № 2128)
Номер опубликования: 9101202501210013
Дата опубликования:
21.01.2025
