Приказ Министерства культуры Республики Крым от 20.12.2024 № 793-ОКН
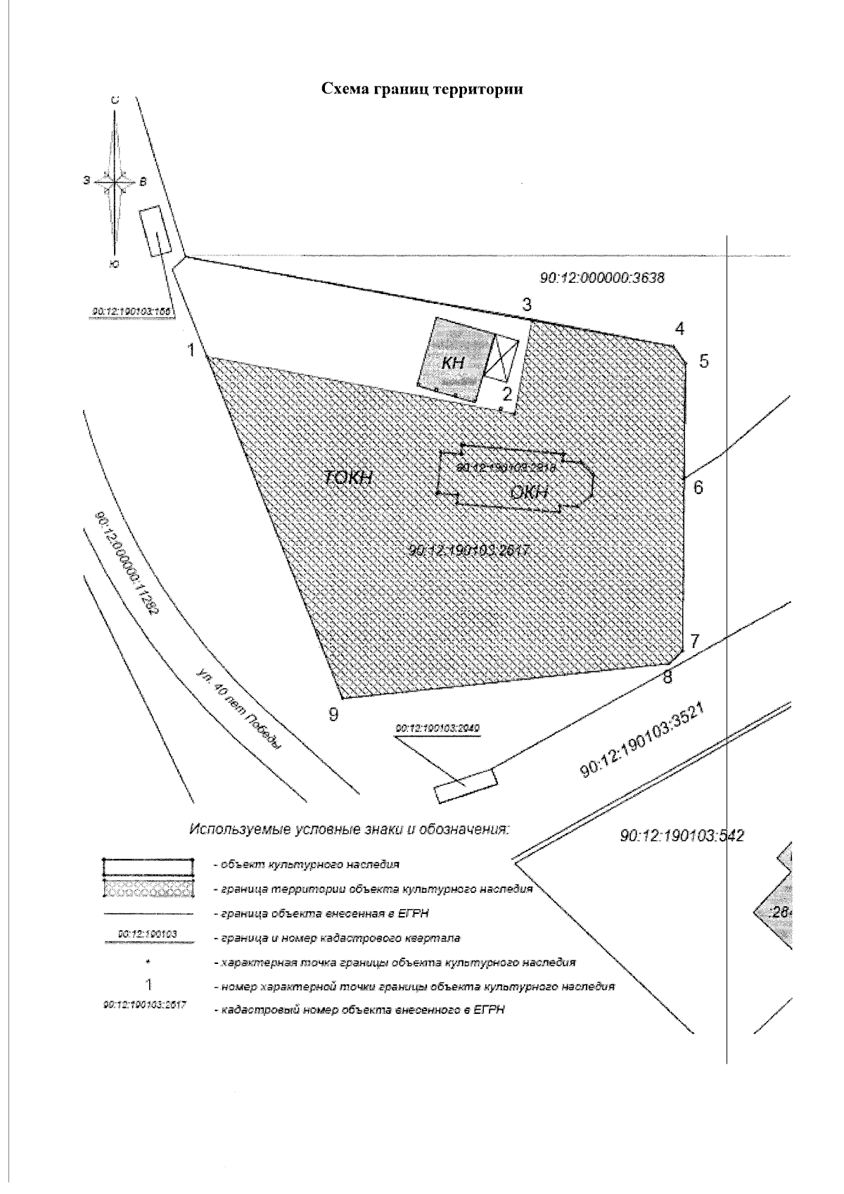
"Об утверждении границ территории, режимов использования земель в границах территории объекта культурного наследия регионального значения "Церковь святого благоверного князя Александра Невского", XIX век, расположенного по адресу: Республика Крым, Симферопольский район, сельское поселение Урожайновское, с. Урожайное"
(Зарегистрирован 23.12.2024 № 2047)
"Об утверждении границ территории, режимов использования земель в границах территории объекта культурного наследия регионального значения "Церковь святого благоверного князя Александра Невского", XIX век, расположенного по адресу: Республика Крым, Симферопольский район, сельское поселение Урожайновское, с. Урожайное"
(Зарегистрирован 23.12.2024 № 2047)
Номер опубликования: 9101202412260010
Дата опубликования:
26.12.2024
