Официальное опубликование правовых актов
ОФИЦИАЛЬНОЕ ОПУБЛИКОВАНИЕ
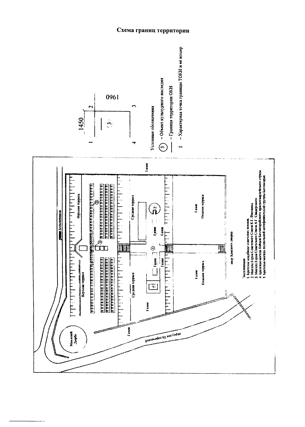
Приказ Министерства культуры Республики Крым от 21.08.2024 № 417-ОКН
"Об утверждении границ территории, режимов использования земель в границах территории объекта культурного наследия регионального значения "Могила Героя Советского Союза А.Г. Свидерского", 1944 год, расположенного по адресу: Республика Крым, г. Бахчисарай, ул. Речная, 133"
(Зарегистрирован 26.08.2024 № 1626)
Номер опубликования: 9101202408280007
Дата опубликования: 28.08.2024
Страница №4 из 5:
Увеличить