Официальное опубликование правовых актов
ОФИЦИАЛЬНОЕ ОПУБЛИКОВАНИЕ
Приказ Министерства культуры Республики Крым от 04.07.2024 № 324-ОКН
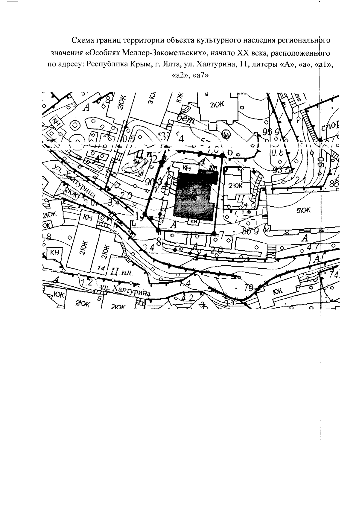
"О включении выявленного объекта культурного наследия "Доходный дом (загородный) Меллер-Закомельских", конец XIX века – начало XX века, расположенного по адресу: Республика Крым, г. Ялта, ул. Халтурина, д. 11-а, в единый государственный реестр объектов культурного наследия (памятников истории и культуры) народов Российской Федерации в качестве объекта культурного наследия регионального значения и утверждении границ территории, режимов использования земель в границах территории объекта культурного наследия регионального значения"
(Зарегистрирован 09.07.2024 № 1516)
Номер опубликования: 9101202407120002
Дата опубликования: 12.07.2024
Страница №5 из 7:
Увеличить