Приказ Министерства культуры Республики Крым от 13.07.2021 № 284-окн
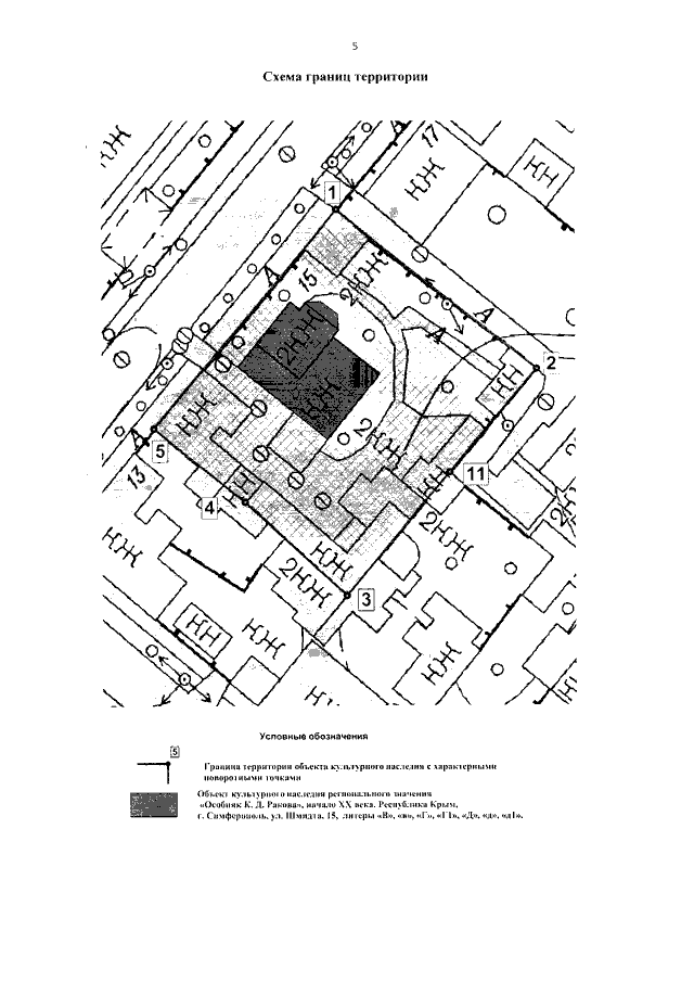
"Об утверждении границ территории, режимов использования земель в границах территории объекта культурного наследия регионального значения "Особняк К.Д. Ракова, начало XX века", расположенного по адресу: Республика Крым, г. Симферополь, ул. Шмидта, 15, литеры "В", "в", "Г", "Г1", "Д", "д", "д1"
"Об утверждении границ территории, режимов использования земель в границах территории объекта культурного наследия регионального значения "Особняк К.Д. Ракова, начало XX века", расположенного по адресу: Республика Крым, г. Симферополь, ул. Шмидта, 15, литеры "В", "в", "Г", "Г1", "Д", "д", "д1"
Номер опубликования: 9101202107150004
Дата опубликования:
15.07.2021
