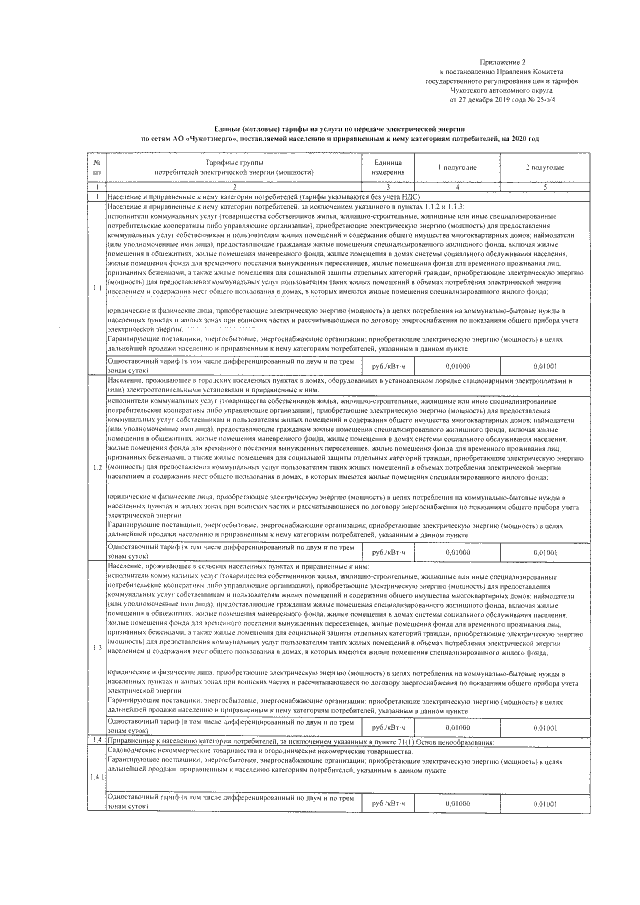
Постановление Правления Комитета государственного регулирования цен и тарифов Чукотского автономного округа от 27.12.2019 № 25-э/4
"Об установлении тарифов на услуги по передаче электрической энергии по сетям АО "Чукотэнерго" на 2020 год"
"Об установлении тарифов на услуги по передаче электрической энергии по сетям АО "Чукотэнерго" на 2020 год"
Номер опубликования: 8701201912310013
Дата опубликования:
31.12.2019
