Официальное опубликование правовых актов
ОФИЦИАЛЬНОЕ ОПУБЛИКОВАНИЕ
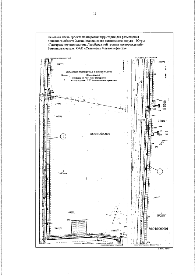
Приказ Департамента строительства Ханты-Мансийского автономного округа – Югры от 19.12.2019 № 27-нп
"Об утверждении документации по планировке территории и внесении изменений в некоторые приказы Департамента строительства Ханты-Мансийского автономного округа — Югры"
(Зарегистрирован 24.12.2019 № 4786)
Номер опубликования: 8601201912300002
Дата опубликования: 30.12.2019
Страница №19 из 743:
Увеличить