Официальное опубликование правовых актов
ОФИЦИАЛЬНОЕ ОПУБЛИКОВАНИЕ
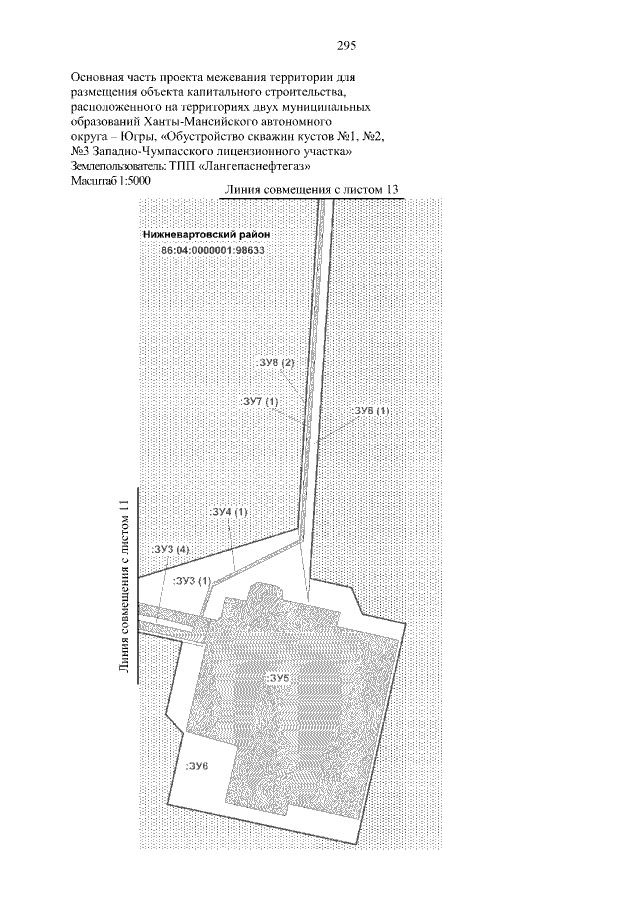
Приказ Департамента строительства Ханты-Мансийского автономного округа – Югры от 22.08.2018 № 21-нп
"Об утверждении документации по планировке территории для размещения линейных объектов"
(Зарегистрирован 27.08.2018 № 3989)
Номер опубликования: 8601201809040002
Дата опубликования: 04.09.2018
Страница №295 из 333:
Увеличить