Официальное опубликование правовых актов
ОФИЦИАЛЬНОЕ ОПУБЛИКОВАНИЕ
Постановление Правительства Ханты-Мансийского автономного округа - Югры от 19.05.2017 № 194-п
"Об утверждении документации по планировке территории для размещения линейных объектов регионального значения Ханты-Мансийского автономного округа – Югры и о внесении изменений в постановление Правительства Ханты-Мансийского автономного округа – Югры от 17 марта 2017 года № 89-п "Об утверждении документации по планировке территории для размещения линейных объектов регионального значения Ханты-Мансийского автономного округа – Югры и о внесении изменений в постановление Правительства Ханты-Мансийского автономного округа – Югры от 18 ноября 2016 года № 457-п "Об утверждении документации по планировке территории для размещения линейных объектов регионального значения Ханты-Мансийского автономного округа – Югры и о внесении изменений в некоторые постановления Правительства Ханты-Мансийского автономного округа – Югры"
Номер опубликования: 8600201705250003
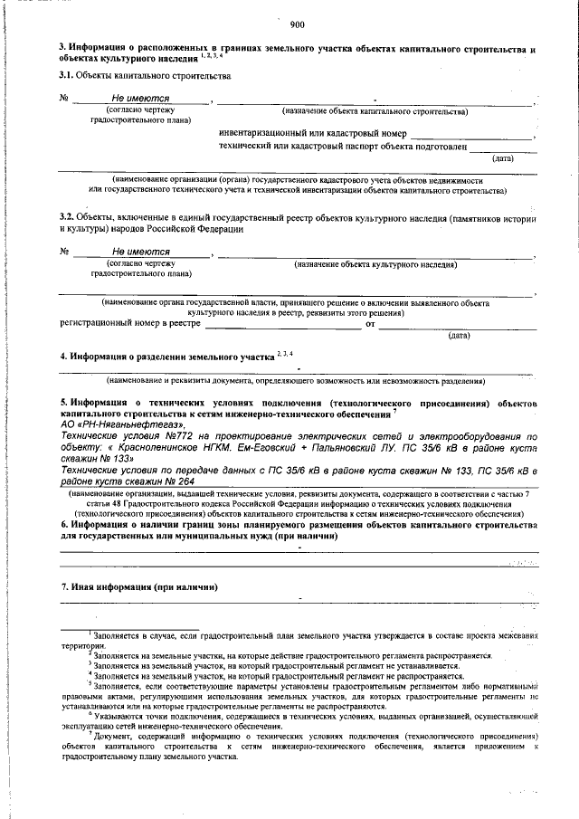
Дата опубликования: 25.05.2017
Страница №900 из 1057:
Увеличить