Официальное опубликование правовых актов
ОФИЦИАЛЬНОЕ ОПУБЛИКОВАНИЕ
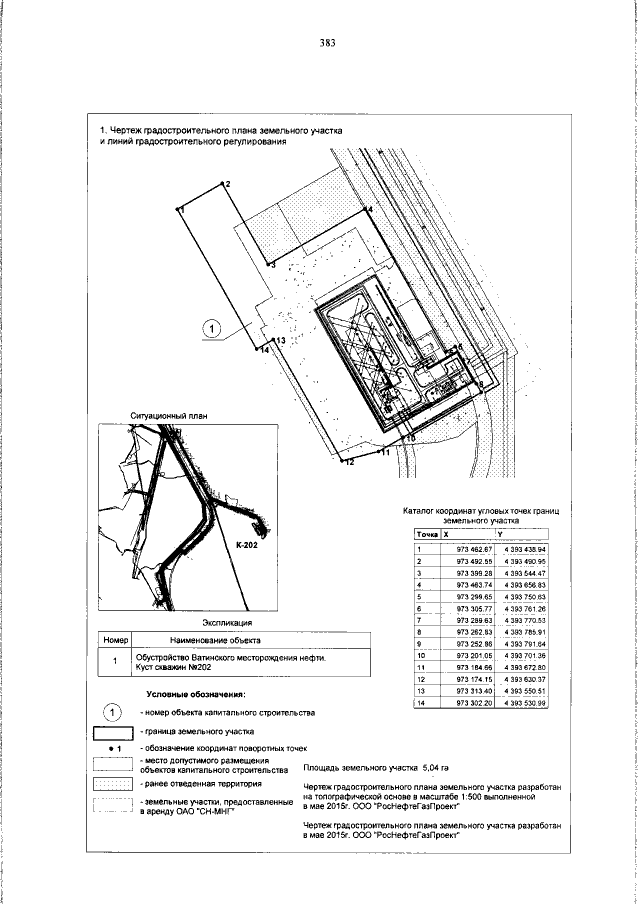
Постановление Правительства Ханты-Мансийского автономного округа - Югры от 13.11.2015 № 389-п
"Об утверждении документации по планировке территории для размещения линейных объектов регионального значения Ханты-Мансийского автономного округа - Югры"
Номер опубликования: 8600201511170008
Дата опубликования: 17.11.2015
Страница №383 из 473:
Увеличить