Официальное опубликование правовых актов
ОФИЦИАЛЬНОЕ ОПУБЛИКОВАНИЕ
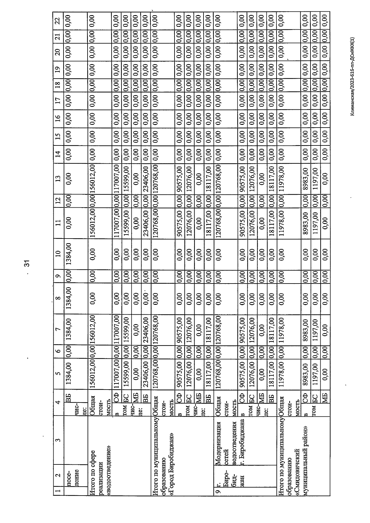
Постановление правительства Еврейской автономной области от 14.12.2023 № 543-пп
"О внесении изменений в государственную программу Еврейской автономной области "Региональная программа по модернизации систем коммунальной инфраструктуры" на 2023 – 2027 годы, утвержденную постановлением правительства Еврейской автономной области от 22.05.2023 № 229-пп"
Номер опубликования: 7900202312150020
Дата опубликования: 15.12.2023
Страница №31 из 38:
Увеличить