Официальное опубликование правовых актов
ОФИЦИАЛЬНОЕ ОПУБЛИКОВАНИЕ
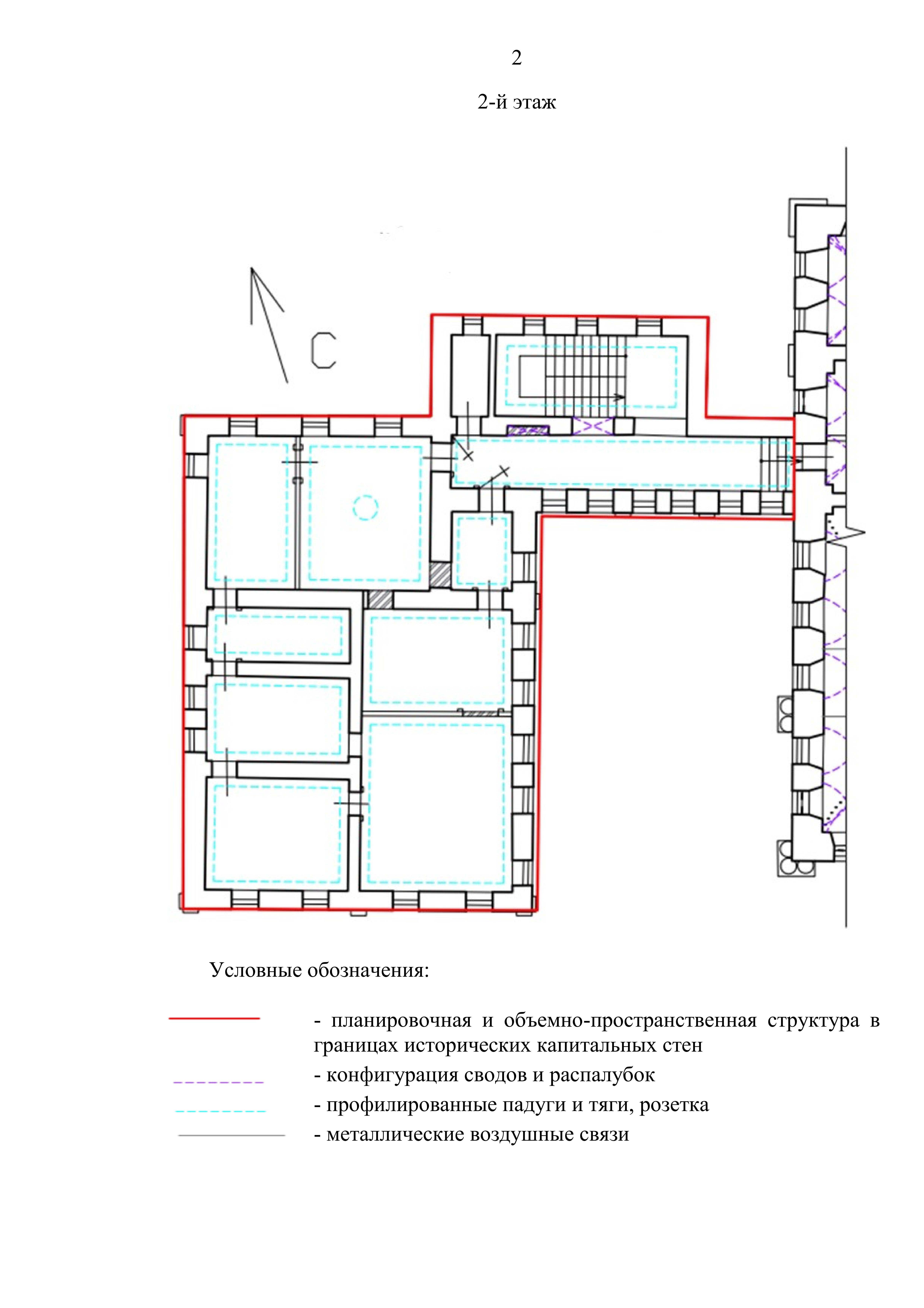
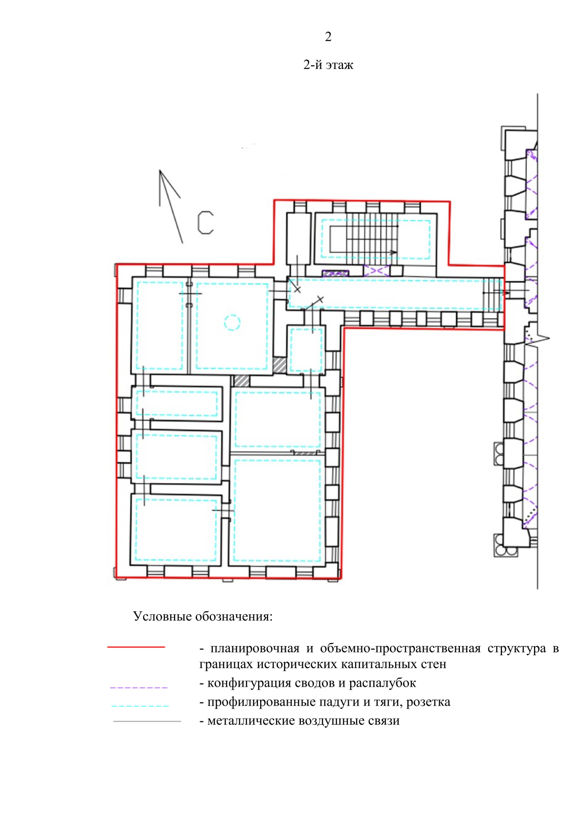
Приказ государственной службы охраны объектов культурного наследия Ярославской области от 18.07.2025 № 123
"Об утверждении предметов охраны объектов культурного наследия федерального значения"
(Зарегистрирован 22.07.2025 № 36-16412)
Номер опубликования: 7601202507250011
Дата опубликования: 25.07.2025
Страница №19 из 62: