Приказ Государственной службы по охране объектов культурного наследия Забайкальского края от 18.03.2024 № 2-НПА-ГТ
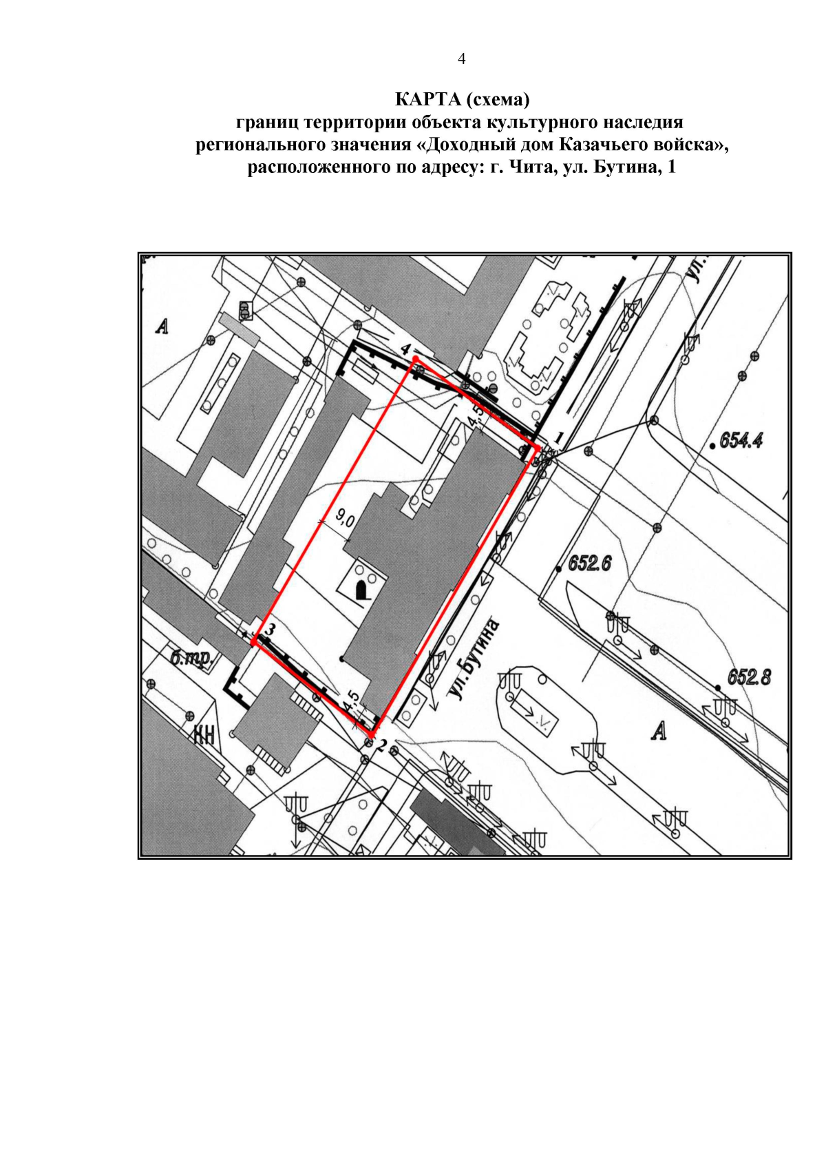
"Об утверждении границ территории и правового режима использования территории объекта культурного наследия регионального значения «Доходный дом Казачьего войска», расположенного по адресу: г. Чита, ул. Бутина, 1"
(Зарегистрирован 18.03.2024 № 189-75-2024)
"Об утверждении границ территории и правового режима использования территории объекта культурного наследия регионального значения «Доходный дом Казачьего войска», расположенного по адресу: г. Чита, ул. Бутина, 1"
(Зарегистрирован 18.03.2024 № 189-75-2024)
Номер опубликования: 7501202403200003
Дата опубликования:
20.03.2024
