Официальное опубликование правовых актов
ОФИЦИАЛЬНОЕ ОПУБЛИКОВАНИЕ
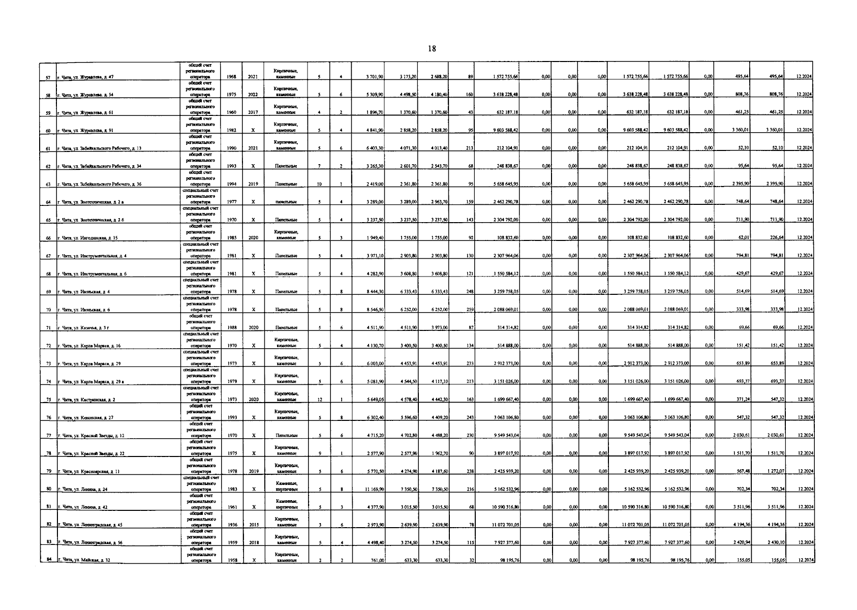
Постановление Правительства Забайкальского края от 08.04.2025 № 175
"О внесении изменений в Региональный краткосрочный план реализации Региональной программы капитального ремонта общего имущества в многоквартирных домах, расположенных на территории Забайкальского края, на период 2023-2025 годов"
Номер опубликования: 7500202504100003
Дата опубликования: 10.04.2025
Страница №18 из 72:
Увеличить