Официальное опубликование правовых актов
ОФИЦИАЛЬНОЕ ОПУБЛИКОВАНИЕ
Постановление Правительства Челябинской области от 22.10.2025 № 701-П
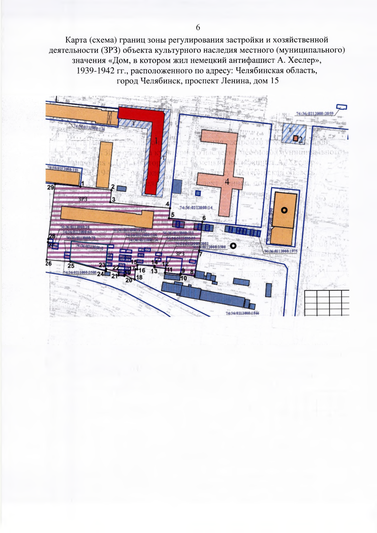
"О принятии решения об установлении зон охраны и утверждении требований к градостроительным регламентам в границах территорий зон охраны объекта культурного наследия местного (муниципального) значения "Дом, в котором жил немецкий антифашист А. Хеслер", 1939-1942 гг., расположенного по адресу: Челябинская область, город Челябинск, проспект Ленина, дом 15"
Номер опубликования: 7400202510230001
Дата опубликования: 23.10.2025
Страница №8 из 18:
Увеличить