Официальное опубликование правовых актов
ОФИЦИАЛЬНОЕ ОПУБЛИКОВАНИЕ
Постановление Правительства Ульяновской области от 13.05.2020 № 243-П
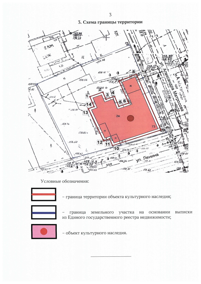
"Об утверждении границ и режима использования территорий объектов культурного наследия (памятников истории и культуры) народов Российской Федерации регионального значения, расположенных на территории Ульяновской области"
Номер опубликования: 7300202005150001
Дата опубликования: 15.05.2020
Страница №13 из 32:
Увеличить