Официальное опубликование правовых актов
ОФИЦИАЛЬНОЕ ОПУБЛИКОВАНИЕ
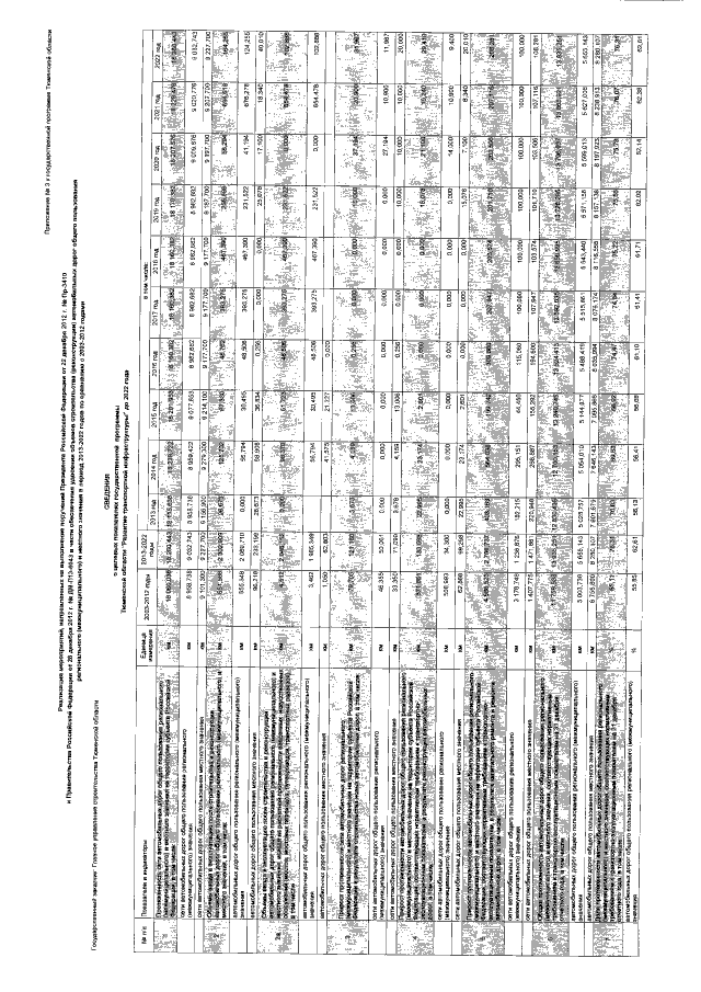
Постановление Правительства Тюменской области от 17.08.2017 № 414-п "О внесении изменений в постановление от 30.12.2014 № 701-п"
Номер опубликования: 7200201708180001
Дата опубликования: 18.08.2017
Страница №20 из 151:
Увеличить