Официальное опубликование правовых актов
ОФИЦИАЛЬНОЕ ОПУБЛИКОВАНИЕ
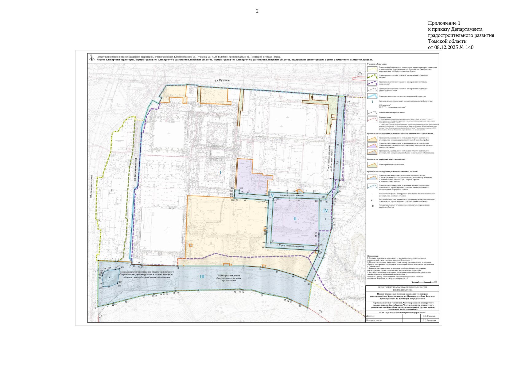
Приказ Департамента градостроительного развития Томской области от 08.12.2025 № 140
"Об утверждении проекта планировки и проекта межевания территории, ограниченной пр. Комсомольский, ул. Пушкина, ул. Льва Толстого, проектируемым пр. Новаторов в г. Томске"
(Зарегистрирован 09.12.2025 № 1436-91/2025)
Номер опубликования: 7001202512090010
Дата опубликования: 09.12.2025
Страница №2 из 193:
Увеличить