Официальное опубликование правовых актов
ОФИЦИАЛЬНОЕ ОПУБЛИКОВАНИЕ
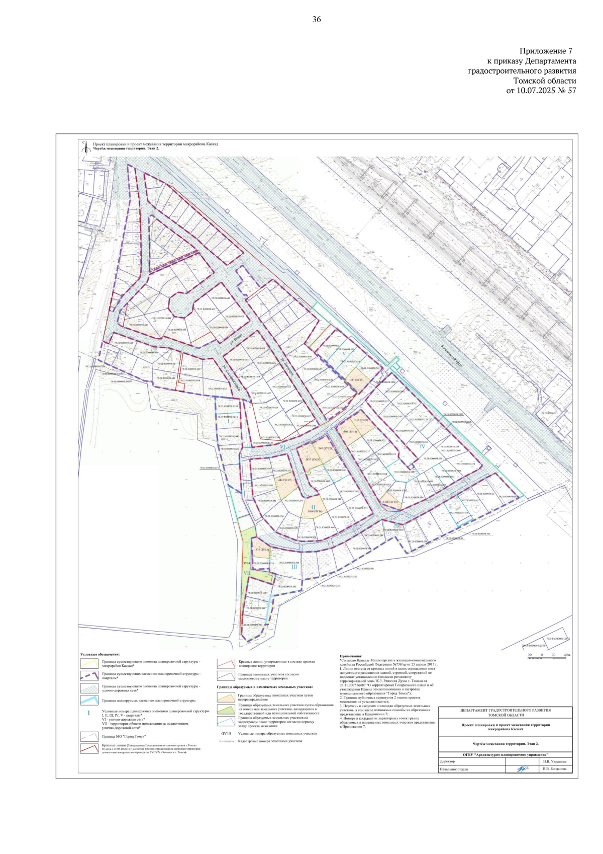
Приказ Департамента градостроительного развития Томской области от 10.07.2025 № 57
"Об утверждении проекта планировки и проекта межевания территории микрорайона Каскад"
(Зарегистрирован 10.07.2025 № 771-91/2025)
Номер опубликования: 7001202507140005
Дата опубликования: 14.07.2025
Страница №36 из 60:
Увеличить