Официальное опубликование правовых актов
ОФИЦИАЛЬНОЕ ОПУБЛИКОВАНИЕ
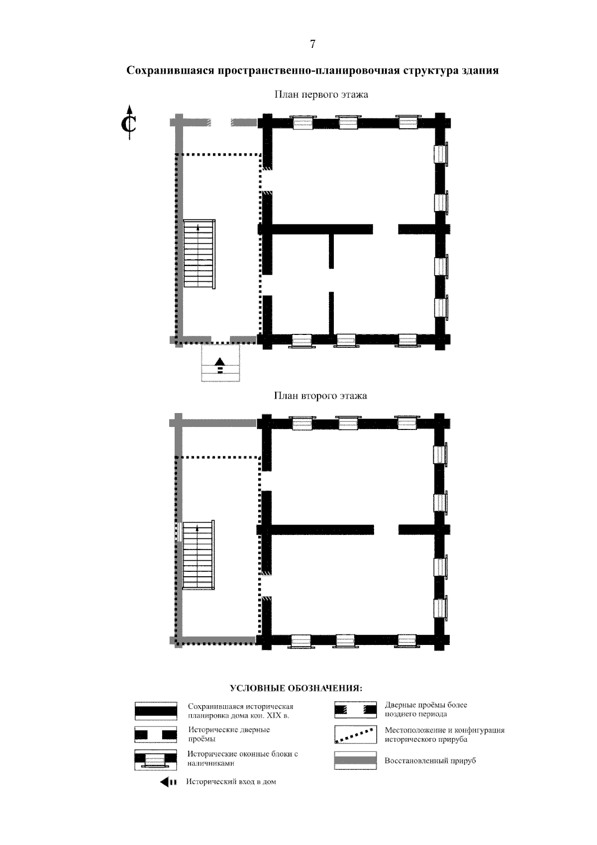
Приказ Комитета по охране объектов культурного наследия Томской области от 16.02.2024 № 0014/01-07
"Об утверждении предмета охраны объекта культурного наследия регионального значения "В этом доме жили Н.Н. Яковлев и А.В. Шишков", 1911-1916 гг., по адресу: Томская область, Парабельский район, с. Нарым, ул. Куйбышева, 44"
(Зарегистрирован 16.02.2024 № 180-48/2024)
Номер опубликования: 7001202402190007
Дата опубликования: 19.02.2024
Страница №7 из 7:
Увеличить