Официальное опубликование правовых актов
ОФИЦИАЛЬНОЕ ОПУБЛИКОВАНИЕ
Постановление Администрации Томской области от 19.04.2016 № 119а
"О внесении изменений в постановление Администрации Томской области от 14.06.2012 № 226а"
Номер опубликования: 7000201604220001
Дата опубликования: 22.04.2016
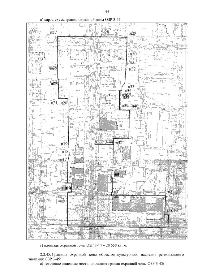
Страница №156 из 203:
Увеличить