Официальное опубликование правовых актов
ОФИЦИАЛЬНОЕ ОПУБЛИКОВАНИЕ
Приказ Департамента по государственной охране объектов культурного наследия Тамбовской области от 11.02.2025 № 68
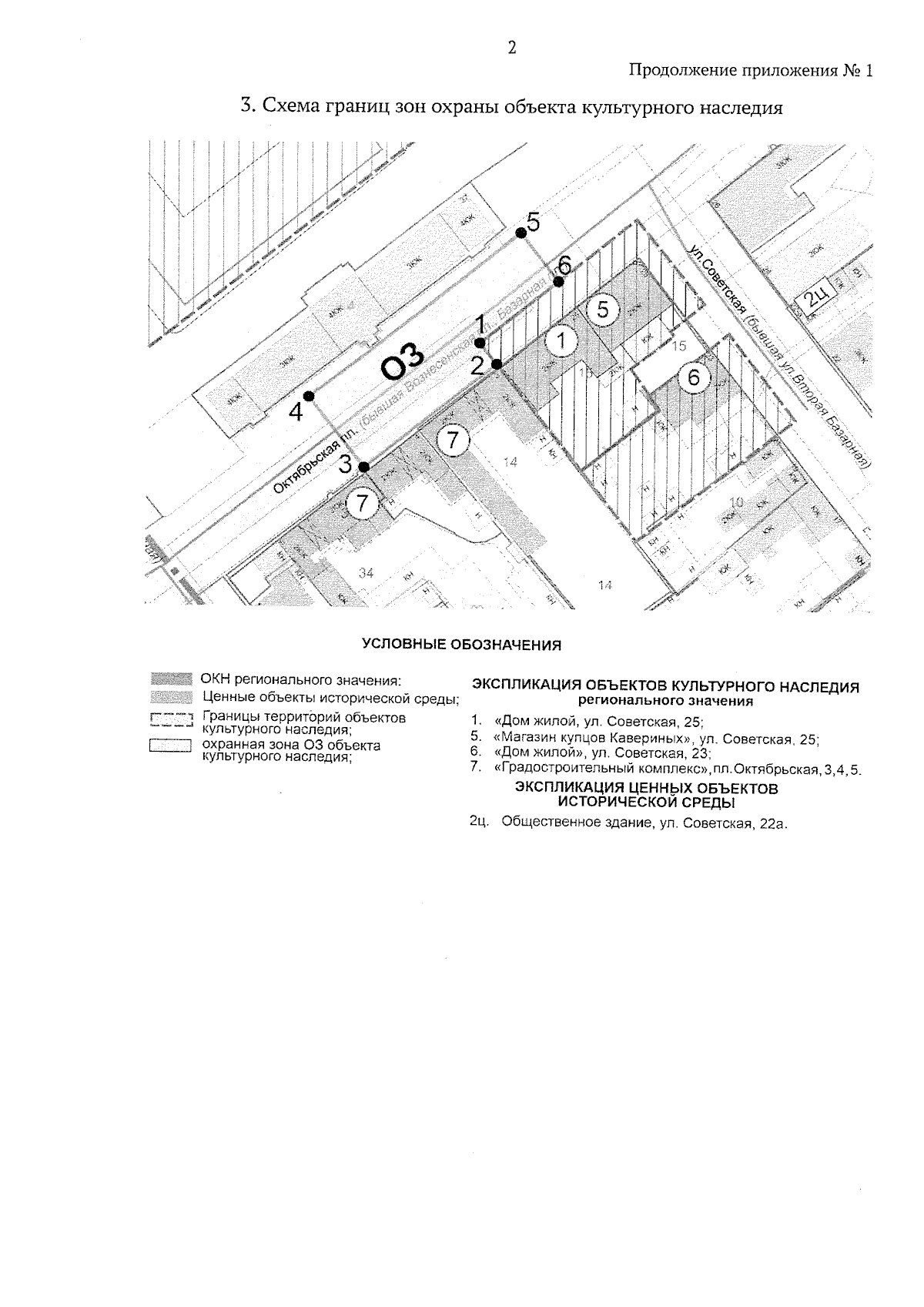
"Об установлении зон охраны объекта культурного наследия регионального значения "Дом жилой" (Тамбовская область, г. Моршанск, ул. Советская, д. 25) и утверждении требований к градостроительным регламентам в границах территорий данных зон"
(Зарегистрирован 11.02.2025 № 68)
Номер опубликования: 6801202502140012
Дата опубликования: 14.02.2025
Страница №4 из 7:
Увеличить