Официальное опубликование правовых актов
ОФИЦИАЛЬНОЕ ОПУБЛИКОВАНИЕ
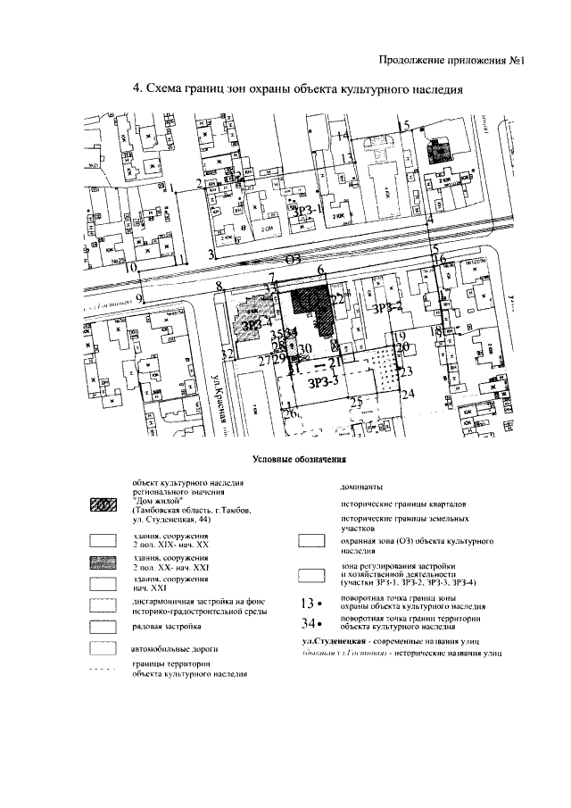
Приказ Управления по государственной охране объектов культурного наследия Тамбовской области от 02.08.2022 № 189
"Об установлении зон охраны объекта культурного наследия регионального значения "Дом жилой" (Тамбовская область, г. Тамбов, ул. Студенецкая, д. 44) и утверждении требований к градостроительным регламентам в границах территорий данных зон"
Номер опубликования: 6801202208020007
Дата опубликования: 02.08.2022
Страница №7 из 11:
Увеличить