Официальное опубликование правовых актов
ОФИЦИАЛЬНОЕ ОПУБЛИКОВАНИЕ
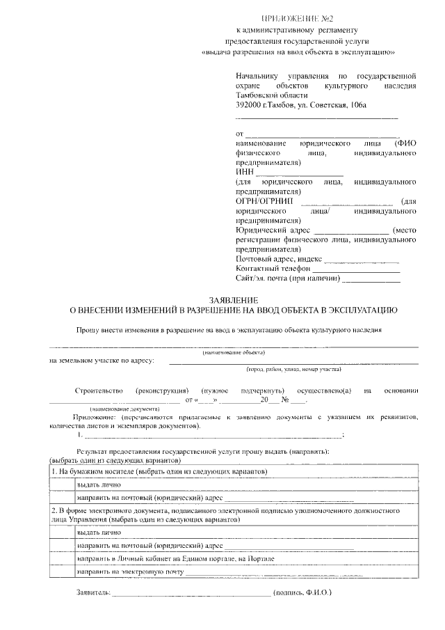
Приказ Управления по государственной охране объектов культурного наследия Тамбовской области от 16.06.2022 № 140
"Об утверждении административного регламента предоставления государственной услуги "выдача разрешения на ввод объекта в эксплуатацию"
Номер опубликования: 6801202206160001
Дата опубликования: 16.06.2022
Страница №35 из 36:
Увеличить