Официальное опубликование правовых актов
ОФИЦИАЛЬНОЕ ОПУБЛИКОВАНИЕ
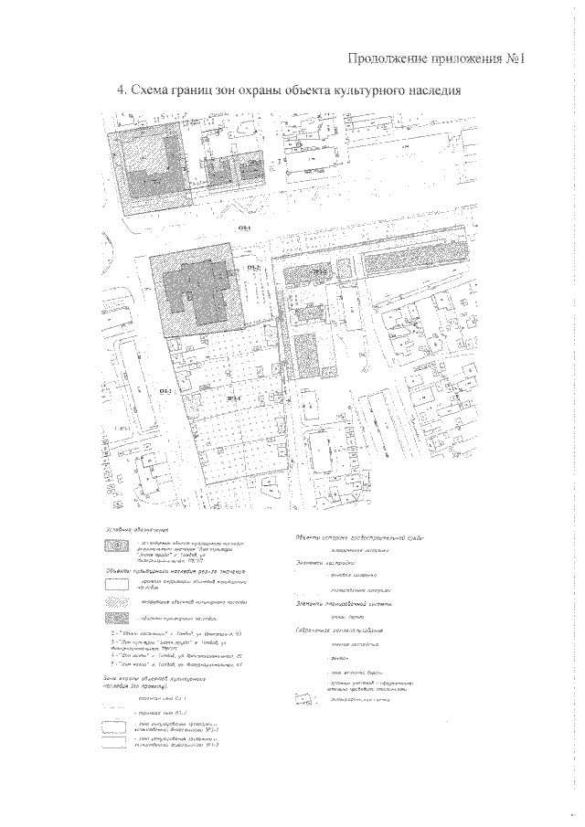
Приказ Управления по государственной охране объектов культурного наследия Тамбовской области от 06.05.2022 № 102
"Об установлении зон охраны объекта культурного наследия регионального значения "Дом культуры "Знамя труда" (Тамбовская область, г. Тамбов, ул. Интернациональная, 118/171) и утверждении требований к градостроительным регламентам в границах территорий данных зон"
Номер опубликования: 6801202205120008
Дата опубликования: 12.05.2022
Страница №12 из 18:
Увеличить