Официальное опубликование правовых актов
ОФИЦИАЛЬНОЕ ОПУБЛИКОВАНИЕ
Приказ Управления по государственной охране объектов культурного наследия Тамбовской области от 06.05.2022 № 98
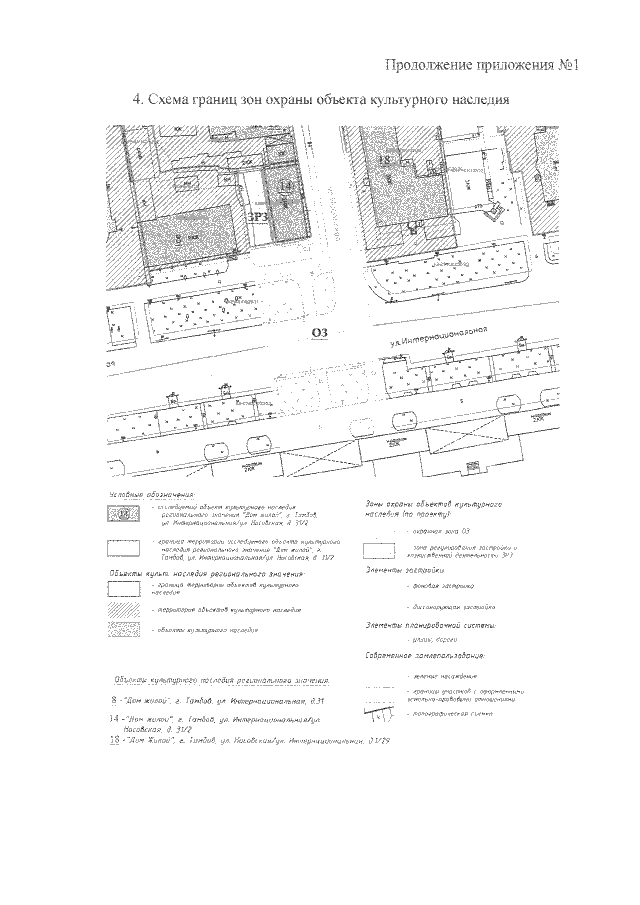
"Об установлении зон охраны объекта культурного наследия регионального значения "Дом жилой" (Тамбовская область, г. Тамбов, ул. Интернациональная/Носовская, 31/2) и утверждении требований к градостроительным регламентам в границах территорий Данных зон"
Номер опубликования: 6801202205120007
Дата опубликования: 12.05.2022
Страница №6 из 10:
Увеличить