Официальное опубликование правовых актов
ОФИЦИАЛЬНОЕ ОПУБЛИКОВАНИЕ
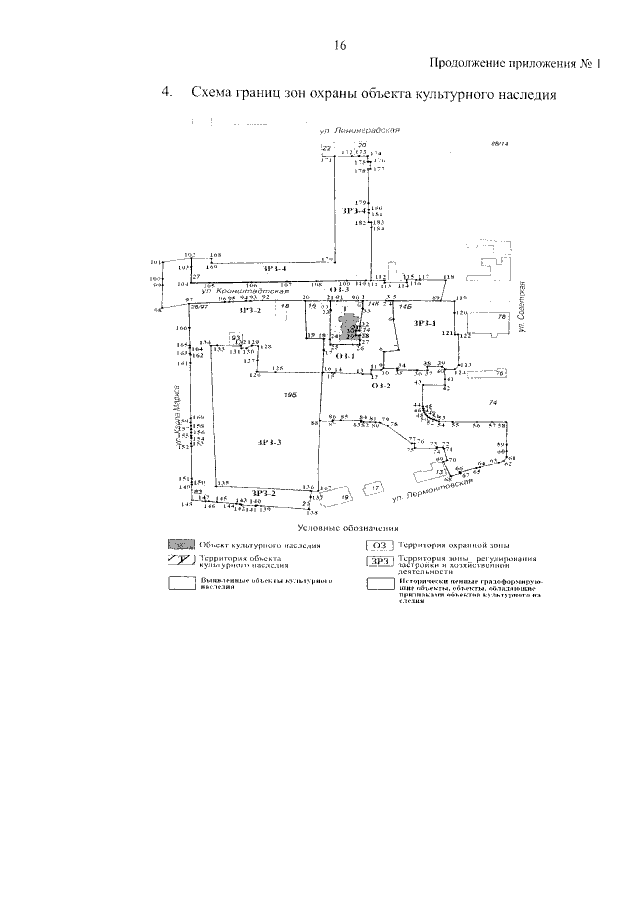
Приказ Управления по государственной охране объектов культурного наследия Тамбовской области от 09.11.2021 № 169
"Об установлении зон охраны объекта культурного наследия регионального значения "Бывший костел" (Тамбовская область, г. Тамбов, ул. Кронштадтская, д.14А) и утверждении требований к градостроительным регламентам в границах территорий данных зон"
Номер опубликования: 6801202111100008
Дата опубликования: 10.11.2021
Страница №18 из 24:
Увеличить