Официальное опубликование правовых актов
ОФИЦИАЛЬНОЕ ОПУБЛИКОВАНИЕ
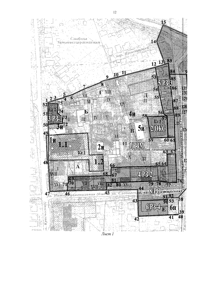
Приказ Управления по государственной охране объектов культурного наследия Тамбовской области от 31.07.2020 № 280
"Об утверждении требований к осуществлению деятельности и градостроительным регламентам в границах территории объекта культурного наследия регионального значения - достопримечательного места "Кирсановский Тихвино-Богородицкий женский монастырь", расположенного по адресу: Тамбовская область, г. Кирсанов, в границах ул.Рабоче-Крестьянской, пер.Ярославского, реки Пурсовка, улиц Зеленой, Советской, Интернациональной"
Номер опубликования: 6801202008050001
Дата опубликования: 05.08.2020
Страница №24 из 27:
Увеличить