Официальное опубликование правовых актов
ОФИЦИАЛЬНОЕ ОПУБЛИКОВАНИЕ
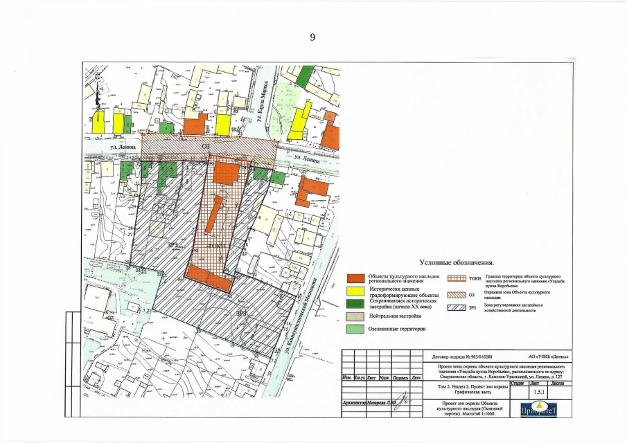
Приказ Управления государственной охраны объектов культурного наследия Свердловской области от 08.02.2023 № 70
"Об установлении зон охраны объекта культурного наследия регионального значения "Усадьба купца Воробьева" и входящих в его состав объектов культурного наследия регионального значения "Дом жилой", "Хозяйственная постройка", "Конюшня" и "Склад зерновой", расположенных по адресу: Свердловская область, г. Каменск-Уральский, ул. Ленина, д. 127, и утверждении требований к градостроительным регламентам в границах данных зон"
Номер опубликования: 6601202302100003
Дата опубликования: 10.02.2023
Страница №9 из 13:
Увеличить