Официальное опубликование правовых актов
ОФИЦИАЛЬНОЕ ОПУБЛИКОВАНИЕ
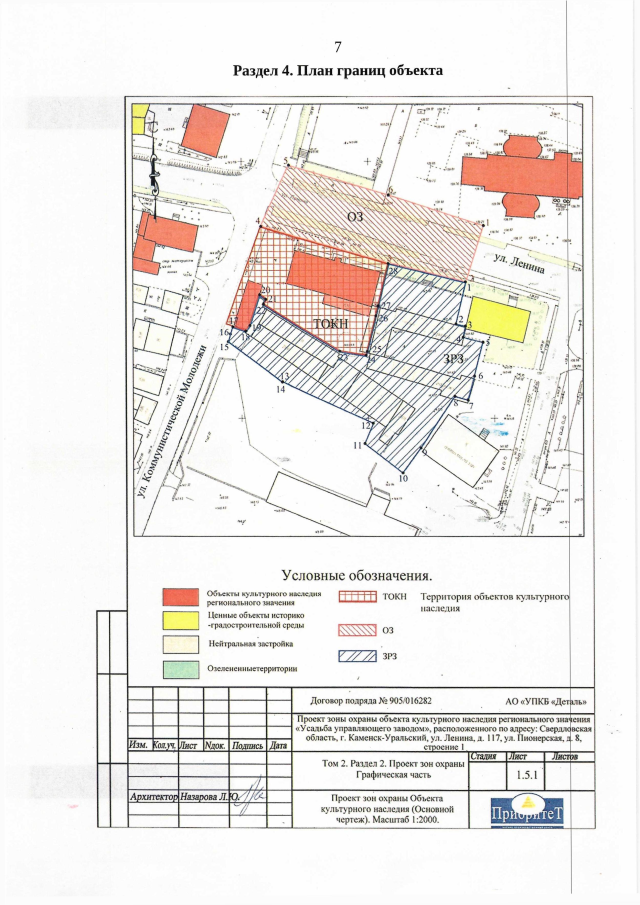
Приказ Управления государственной охраны объектов культурного наследия Свердловской области от 16.12.2022 № 999
"Об установлении зон охраны объекта культурного наследия регионального значения "Усадьба управляющего заводом", расположенного по адресу: Свердловская область, г. Каменск-Уральский, ул. Ленина, д. 117, ул. Пионерская, д. 8, строение 1, и входящих в его состав объектов культурного наследия регионального значения "Дом жилой", расположенного по адресу: Свердловская область, г. Каменск-Уральский, ул. Ленина, д. 117, и "Изба кучерская", расположенного по адресу: Свердловская область, г. Каменск-Уральский, ул. Пионерская, д. 8, строение 1, и утверждении требований к градостроительным регламентам в границах данных зон"
Номер опубликования: 6601202212200005
Дата опубликования: 20.12.2022
Страница №7 из 12:
Увеличить