Официальное опубликование правовых актов
ОФИЦИАЛЬНОЕ ОПУБЛИКОВАНИЕ
Приказ Управления государственной охраны объектов культурного наследия Свердловской области от 05.10.2022 № 755
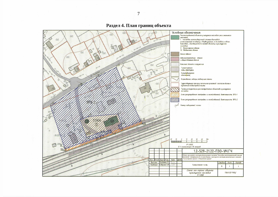
"Об установлении зон охраны объекта культурного наследия регионального значения "Ансамбль железнодорожной станции" и входящих в его состав объектов культурного наследия регионального значения "Пассажирское здание" и "Водоемное здание", расположенных по адресу: Свердловская область, г. Первоуральск, п. Билимбай, ж/д ст. Билимбай, и утверждении требований к градостроительным регламентам в границах данных зон"
Номер опубликования: 6601202210070004
Дата опубликования: 07.10.2022
Страница №7 из 12:
Увеличить